以前募集していた物件を表示する
営業時間:平日9:00~18:00
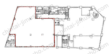
建物仕様
| 名称 | 第1電波ビル |
|---|---|
| 住所 | 千代田区外神田2-4-4 |
| 交通 |
利用可能駅
利用可能路線
|
| 規模・構造 | 鉄骨鉄筋コンクリート造(SRC) / 地上8階・地下2階建 |
| 竣工 | 1956年1月 |
| 用途・仕様 | 賃貸オフィス、事務所仕様 |
| エレベーター | 6人乗 2基 |
| 入り口段差 | 有り |
設備・特徴
スタッフおすすめのポイント
1963年築、昌平橋通りの「神田明神下」交差点に建つ歴史のある賃貸事務所ビルです。2013年にリニューアルがされており、角地立地の外観は白色の壁面を基調に綺麗に窓面が並び古さを感じさせない装いで存在感があります。最大フロアーは170坪台のボリュームのある空間。50〜100坪前後の分割貸しのお部屋もあり、個別空調・OAフロアー・男女別トイレ・機械警備に対応しています。JRの秋葉原駅・御茶ノ水駅が徒歩5分で最寄駅となりますが、靖国通りにある淡路町駅・小川町駅も徒歩圏内で通勤やビジネスラインの選択肢が増えるでしょう。
地図でアクセスを確認する
近隣の同クラスのビル
第1電波ビルの関連リンク
近隣のオススメ物件
I・T秋葉原ビル

千代田区神田和泉町1-3-13 秋葉原駅 徒歩5分 35.27坪
Yunuoビル

千代田区神田東松下町23-1 岩本町駅 徒歩1分 47.38坪
愛光舎ビル

千代田区神田三崎町1-4-8 水道橋駅 徒歩2分 58.89坪
NRT神田須田町ビル

千代田区神田須田町2-3-16 岩本町駅 徒歩2分 41.66坪
杉木立ビル

台東区浅草橋1-24-3 浅草橋駅 徒歩1分 39.82坪
ラウンドクロス秋葉原

千代田区神田松永町4-1 秋葉原駅 徒歩2分 76.65坪
御茶ノ水天神ビル

文京区湯島3-2-12 御茶ノ水駅 徒歩6分 49.41坪
石川興産ビル

千代田区外神田4-7-5 末広町駅 徒歩1分 40.2坪
NCKビル

文京区本郷3-3-11 御茶ノ水駅 徒歩5分 34.61坪
ツインビュー御茶の水ビル

文京区本郷2-3-9 水道橋駅 徒歩6分 51.91坪
いちご神田小川町ビル

千代田区神田小川町2-4-16 御茶ノ水駅 徒歩8分 70.14坪
聖公会神田ビル

千代田区外神田3-5-12 末広町駅 徒歩2分 110.71坪
本郷大関ビル

文京区本郷3-19-4 本郷三丁目駅 徒歩4分 35.71坪
偕楽ビル外神田

千代田区外神田6-5-4 秋葉原駅 徒歩10分 34.5坪
利根川第2ビル

文京区湯島1-6-1 御茶ノ水駅 徒歩4分 48.76坪
岩本町ビル

千代田区神田岩本町1-1 秋葉原駅 徒歩2分 40坪
第二木津ビル

千代田区神田小川町2-10 新御茶ノ水駅 徒歩1分 35.99~42.99坪
お茶の水ウィングビル

文京区本郷2-15-13 水道橋駅 徒歩8分 75.02坪
ポータル秋葉原

千代田区東神田2-10-9 秋葉原駅 徒歩9分 35.2坪
第5東ビル

千代田区神田佐久間町3-38 秋葉原駅 徒歩2分 54坪















