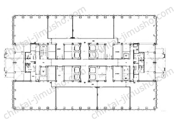
新宿野村ビル 26F 57.54坪
新宿区西新宿1-26-2
募集要項
26F2604
57.54坪190.21㎡
お問合せください -
入居可能日
2026年4月1日
月額内訳 ・ その他
| 賃料 | -円 |
|---|---|
| 管理費 | |
| 敷金・保証金 | お問合せください |
| 礼金・償却 | なし |
| 更新料 | なし |
| 契約期間 | 3年(定期借家契約) |
※ 課税項目は、税抜き表示です
お問合せ番号362692
お客様専用フリーダイヤル 0120-110-177
| 空室確認日 | 取扱会社 | タワーズプランニング株式会社 | |
|---|---|---|---|
| 取引態様 | 仲介 | 登録免許 | 宅地建物取引業登録 国土交通大臣(4) 7353号 |
特徴・設備
- エレベーターあり (22人乗り・24基)
- OAフロア
- 駐車場あり
- 男女別トイレ
- 光ファイバー対応
- エアコンあり
特徴・設備は調査時のものです。現状を優先致しますのでご了承下さい。
スタッフおすすめのポイント
西新宿の高層ビルの中でも歴史がありビル群を代表する1棟と言えます。青梅街道沿いで新宿警察署の手間にある本件は、他の高層ビルに比べますと比較的JR新宿駅に近い立地で利便性は高めです。基準階フロアーは約500坪の大型空間、センターコアを境に約250坪ずつの2室構成です。共用部から室内への動線箇所がいくつかございますので数十坪クラスの分割貸しにも対応しています。
他のフロアの空室状況
| 階数 | 広さ | 賃料 | 敷/礼 | 詳細 | 間取り | クリップ |
|---|---|---|---|---|---|---|
| 37F | 381.86坪1,262.35㎡ | -お問合せください |
敷: -
礼: なし
|
詳細 |
|
|
| 41F | 386.73坪1,278.45㎡ | -お問合せください |
敷: -
礼: -
|
詳細 |
|
|
| 43F | 391.99坪1,295.83㎡ | -お問合せください |
敷: -
礼: -
|
詳細 |
|
|
| 42F | 391.99坪1,295.83㎡ | -お問合せください |
敷: -
礼: -
|
詳細 |
|
|
| 34F | 381.86坪1,262.35㎡ | -お問合せください |
敷: -
礼: なし
|
詳細 |
|
|
| 46F | 402.11坪1,329.29㎡ | -お問合せください |
敷: -
礼: -
|
詳細 |
|
|
| 38F | 391.99坪1,295.83㎡ | -お問合せください |
敷: -
礼: なし
|
詳細 |
|
|
| 26F2601 | 48.48坪160.26㎡ | -お問合せください |
敷: -
礼: なし
|
詳細 |
|
|
| 26F2602 | 27.18坪89.85㎡ | -お問合せください |
敷: -
礼: なし
|
詳細 |
|
|
| 26F2603 | 45.30坪149.75㎡ | -お問合せください |
敷: -
礼: なし
|
詳細 |
|
|
| 26F2606 | 36.24坪119.80㎡ | -お問合せください |
敷: -
礼: なし
|
詳細 |
|
|
| 26F2607 | 45.30坪149.75㎡ | -お問合せください |
敷: -
礼: なし
|
詳細 |
|
|
| 26F2608 | 57.54坪190.21㎡ | -お問合せください |
敷: -
礼: なし
|
詳細 |
|
|
| 48F4805 | 13.68坪45.22㎡ | -お問合せください |
敷: -
礼: -
|
詳細 |
|
|
| 15F東5-12 | 72.57坪239.90㎡ | -お問合せください |
敷: -
礼: -
|
詳細 |
|
|
| 45F | 391.99坪1,295.83㎡ | -お問合せください |
敷: -
礼: -
|
詳細 |
|
|
| 39F西15-22 | 110.66坪365.82㎡ | -お問合せください |
敷: -
礼: -
|
詳細 |
|
|
| 15F西5-15 | 105.48坪348.69㎡ | -お問合せください |
敷: -
礼: なし
|
詳細 |
|
|
| 39F西5-15 | 110.66坪365.82㎡ | -お問合せください |
敷: -
礼: -
|
詳細 |
|
|
| 5F西9-14 | 58.32坪192.79㎡ | -お問合せください |
敷: -
礼: -
|
詳細 |
|
|
| 12F | 72.57坪239.90㎡ | 募集終了 | 詳細 |
|
||
| 28F | 30.04坪99.31㎡ | 募集終了 | 詳細 |
|
||
| 13F | 351.48坪1,161.92㎡ | 募集終了 | 詳細 |
|
||
| 3F | 351.48坪1,161.92㎡ | 募集終了 | 詳細 |
|
||
| 33F | 110.66坪365.82㎡ | 募集終了 | 詳細 |
|
||
| 28F | 81.89坪270.71㎡ | 募集終了 | 詳細 |
|
||
| 5F | 22.45坪74.21㎡ | 募集終了 | 詳細 |
|
||
| 17F | 72.57坪239.90㎡ | 募集終了 | 詳細 |
|
||
| 11F | 72.57坪239.90㎡ | 募集終了 | 詳細 |
|
||
| 14F | 100.53坪332.33㎡ | 募集終了 | 詳細 |
|
||
| 39F | 43.34坪143.27㎡ | 募集終了 | 詳細 |
|
||
| 11F | 178.37坪589.65㎡ | 募集終了 | 詳細 |
|
||
| 11F | 351.48坪1,161.92㎡ | 募集終了 | 詳細 |
|
||
| 39F | 391.99坪1,295.83㎡ | 募集終了 | 詳細 |
|
||
| 5F | 22.45坪74.21㎡ | 募集終了 | 詳細 |
|
||
| 34F | 188.49坪623.11㎡ | 募集終了 | 詳細 |
|
||
| 26F | 366.48坪1,211.50㎡ | 募集終了 | 詳細 |
|
||
| 39F | 72.57坪239.90㎡ | 募集終了 | 詳細 |
|
||
| 41F | 110.66坪365.82㎡ | 募集終了 | 詳細 |
|
||
| 3F | 178.37坪589.65㎡ | 募集終了 | 詳細 |
|
||
| 3F | 173.11坪572.26㎡ | 募集終了 | 詳細 |
|
||
| 30F | 63.25坪209.09㎡ | 募集終了 | 詳細 |
|
||
| 10F | 72.57坪239.90㎡ | 募集終了 | 詳細 |
|
||
| 7F | 351.48坪1,161.92㎡ | 募集終了 | 詳細 |
|
||
| 23F | 361.61坪1,195.40㎡ | 募集終了 | 詳細 |
|
||
| 7F | 72.57坪239.90㎡ | 募集終了 | 詳細 |
|
||
| 21F | 63.25坪209.09㎡ | 募集終了 | 詳細 |
|
||
| 31F | 39.36坪130.12㎡ | 募集終了 | 詳細 |
|
||
| 37F | 115.91坪383.17㎡ | 募集終了 | 詳細 |
|
||
| 39F | 58.00坪191.74㎡ | 募集終了 | 詳細 |
|
||
| 8F | 81.89坪270.71㎡ | 募集終了 | 詳細 |
|
||
| 31F | 183.24坪605.75㎡ | 募集終了 | 詳細 |
|
||
| 41F | 386.73坪1,278.45㎡ | 募集終了 | 詳細 |
|
||
| 7F | 173.11坪572.26㎡ | 募集終了 | 詳細 |
|
||
| 28F | 106.59坪352.36㎡ | 募集終了 | 詳細 |
|
||
| 29F | 153.20坪506.45㎡ | 募集終了 | 詳細 |
|
||
| 29F | 34.02坪112.46㎡ | 募集終了 | 詳細 |
|
||
| 17F | 361.61坪1,195.40㎡ | 募集終了 | 詳細 |
|
||
| 5F | 39.36坪130.12㎡ | 募集終了 | 詳細 |
|
||
| 14F | 30.04坪99.31㎡ | 募集終了 | 詳細 |
|
||
| 14F | 72.36坪239.21㎡ | 募集終了 | 詳細 |
|
||
| 10F | 39.35坪130.08㎡ | 募集終了 | 詳細 |
|
||
| 14F | 178.37坪589.65㎡ | 募集終了 | 詳細 |
|
||
| 17F | 82.70坪273.39㎡ | 募集終了 | 詳細 |
|
||
| 10F | 173.11坪572.26㎡ | 募集終了 | 詳細 |
|
||
| 39F | 16.30坪53.88㎡ | 募集終了 | 詳細 |
|
||
| 7F | 178.37坪589.65㎡ | 募集終了 | 詳細 |
|
||
| 37F | 188.49坪623.11㎡ | 募集終了 | 詳細 |
|
||
| 18F | 361.61坪1,195.40㎡ | 募集終了 | 詳細 |
|
||
| B2F201 | 45.29坪149.72㎡ | 募集終了 | 詳細 |
|
||
| B2F205 | 14.90坪49.26㎡ | 募集終了 | 詳細 |
|
||
| 27F2701 | 48.48坪160.26㎡ | 募集終了 | 詳細 |
|
||
| 27F2702 | 27.18坪89.85㎡ | 募集終了 | 詳細 |
|
||
| 27F2703 | 45.30坪149.75㎡ | 募集終了 | 詳細 |
|
||
| 27F2704 | 57.54坪190.21㎡ | 募集終了 | 詳細 |
|
||
| 27F2705 | 37.17坪122.88㎡ | 募集終了 | 詳細 |
|
||
| 27F2706 | 36.24坪119.80㎡ | 募集終了 | 詳細 |
|
||
| 27F2707 | 45.30坪149.75㎡ | 募集終了 | 詳細 |
|
||
| 27F2708 | 57.54坪190.21㎡ | 募集終了 | 詳細 |
|
||
| 32F41 | 3.00坪9.92㎡ | 募集終了 | 詳細 |
|
||
| 48F4804 | 13.68坪45.22㎡ | 募集終了 | 詳細 |
|
||
| 48F4806 | 15.17坪50.15㎡ | 募集終了 | 詳細 |
|
||
| 48F4807 | 15.17坪50.15㎡ | 募集終了 | 詳細 |
|
||
| 48F4808 | 14.78坪48.86㎡ | 募集終了 | 詳細 |
|
||
| 48F4809 | 21.91坪72.43㎡ | 募集終了 | 詳細 |
|
||
| 48F4810 | 21.91坪72.43㎡ | 募集終了 | 詳細 |
|
||
| 21F全 | 361.61坪1,195.40㎡ | 募集終了 | 詳細 |
|
||
| 24F全 | 366.67坪1,212.13㎡ | 募集終了 | 詳細 |
|
||
| 31F全 | 381.86坪1,262.35㎡ | 募集終了 | 詳細 |
|
||
| 25F東 | 188.49坪623.11㎡ | 募集終了 | 詳細 |
|
||
| 29F東 | 183.24坪605.75㎡ | 募集終了 | 詳細 |
|
||
| 33F東12-22 | 110.66坪365.82㎡ | 募集終了 | 詳細 |
|
||
| 15F東12-22 | 100.53坪332.33㎡ | 募集終了 | 詳細 |
|
||
| 32F東12-22 | 110.66坪365.82㎡ | 募集終了 | 詳細 |
|
||
| 10F東12-22 | 105.79坪349.72㎡ | 募集終了 | 詳細 |
|
||
| 14F東12-22 | 100.53坪332.33㎡ | 募集終了 | 詳細 |
|
||
| 11F東12-22 | 105.79坪349.72㎡ | 募集終了 | 詳細 |
|
||
| 12F東12-22 | 100.53坪332.33㎡ | 募集終了 | 詳細 |
|
||
| 25F東12-22 | 115.91坪383.17㎡ | 募集終了 | 詳細 |
|
||
| 8F東13-22 | 96.47坪318.91㎡ | 募集終了 | 詳細 |
|
||
| 28F東5-12 | 72.57坪239.90㎡ | 募集終了 | 詳細 |
|
||
| 11F東5-12 | 72.57坪239.90㎡ | 募集終了 | 詳細 |
|
||
| 23F東5-12 | 72.57坪239.90㎡ | 募集終了 | 詳細 |
|
||
| 12F東5-12 | 72.57坪239.90㎡ | 募集終了 | 詳細 |
|
||
| 36F東5-16区画 | 109.85坪363.14㎡ | 募集終了 | 詳細 |
|
||
| 33F東5-16区画 | 72.57坪239.90㎡ | 募集終了 | 詳細 |
|
||
| 32F東全 | 183.24坪605.75㎡ | 募集終了 | 詳細 |
|
||
| 39F東全 | 193.36坪639.21㎡ | 募集終了 | 詳細 |
|
||
| 33F東全 | 183.24坪605.75㎡ | 募集終了 | 詳細 |
|
||
| 23F東全・西15-22 | 261.07坪863.04㎡ | 募集終了 | 詳細 |
|
||
| 35F東西全 | 381.86坪1,262.35㎡ | 募集終了 | 詳細 |
|
||
| 11F西 | 173.11坪572.26㎡ | 募集終了 | 詳細 |
|
||
| 25F西 | 183.24坪605.75㎡ | 募集終了 | 詳細 |
|
||
| 33F西 | 154.00坪509.09㎡ | 募集終了 | 詳細 |
|
||
| 5F西11-14 | 40.62坪134.28㎡ | 募集終了 | 詳細 |
|
||
| 28F西13-19 | 76.55坪253.06㎡ | 募集終了 | 詳細 |
|
||
| 14F西15-22 | 72.57坪239.90㎡ | 募集終了 | 詳細 |
|
||
| 15F西15-22 | 67.62坪223.54㎡ | 募集終了 | 詳細 |
|
||
| 36F西15-22 | 82.70坪273.39㎡ | 募集終了 | 詳細 |
|
||
| 31F西15-22 | 82.70坪273.39㎡ | 募集終了 | 詳細 |
|
||
| 10F西15-22 | 67.32坪222.55㎡ | 募集終了 | 詳細 |
|
||
| 34F西15-22 | 82.70坪273.39㎡ | 募集終了 | 詳細 |
|
||
| 28F西5-13 | 81.89坪270.71㎡ | 募集終了 | 詳細 |
|
||
| 9F西5-13 | 81.89坪270.71㎡ | 募集終了 | 詳細 |
|
||
| 10F西5-15 | 105.79坪349.72㎡ | 募集終了 | 詳細 |
|
||
| 31F西5-15 | 115.92坪383.21㎡ | 募集終了 | 詳細 |
|
||
| 23F西5-15 | 100.53坪332.33㎡ | 募集終了 | 詳細 |
|
||
| 14F西5-15 | 105.79坪349.72㎡ | 募集終了 | 詳細 |
|
||
| 29F西5-16 | 109.85坪363.14㎡ | 募集終了 | 詳細 |
|
||
| 14F西8-22 | 148.33坪490.35㎡ | 募集終了 | 詳細 |
|
||
| 5F西9-11 | 17.69坪58.48㎡ | 募集終了 | 詳細 |
|
||
| 34F西全 | 193.36坪639.21㎡ | 募集終了 | 詳細 |
|
||
| 15F西全 | 173.11坪572.26㎡ | 募集終了 | 詳細 |
|
||
| 24F西全 | 183.23坪605.72㎡ | 募集終了 | 詳細 |
|
||
| 39F西全 | 193.36坪639.21㎡ | 募集終了 | 詳細 |
|
||
| 30F西全 | 381.86坪1,262.35㎡ | 募集終了 | 詳細 |
|
||
| 31F西全 | 198.62坪656.60㎡ | 募集終了 | 詳細 |
|
||
| 25F西全・東5-12 | 255.82坪845.69㎡ | 募集終了 | 詳細 |
|
||
地図で場所を確認する(地図をドラッグすると近隣の物件・相場を検索することが出来ます。)
新宿野村ビルの関連リンク
近隣のオススメ物件
ACN新宿ビル

新宿区新宿2-12-8 新宿三丁目駅 徒歩1分 56.51坪
花菱ビル

新宿区新宿3-11-9 新宿三丁目駅 徒歩2分 37.32坪
ビッグス新宿ビル

新宿区新宿2-19-1 新宿三丁目駅 徒歩1分 63.83坪
西新宿松屋ビル

渋谷区代々木4-31-6 初台駅 徒歩4分 40.46坪
代々木センタービル

渋谷区代々木1-57-1 代々木駅 徒歩1分 46.14~83.92坪
ストークビル長崎

新宿区新宿2-11-4 新宿三丁目駅 徒歩1分 33.8坪
新宿グリーンタワー

新宿区西新宿6-14-1 都庁前駅 徒歩5分 28.98~77.08坪
菅野ビル

新宿区西新宿6-2-16 新宿駅 徒歩8分 48.46坪
エキニア新宿

新宿区歌舞伎町1-1-17 新宿駅 徒歩5分 51.6坪
第三雨宮ビル

新宿区西新宿7-9-18 新宿駅 徒歩5分 57.11坪
西新宿プライムスクエア/西新宿木村屋ビルディング

新宿区西新宿7-5-25 新宿駅 徒歩8分 84.18坪
渡辺西新宿ビル

新宿区西新宿4-3-12 西新宿五丁目駅 徒歩2分 57.66坪
岡崎ビル

新宿区西新宿1-19-7 新宿駅 徒歩3分 31.27坪
新宿カメヤビル

渋谷区代々木3-26-2 新宿駅 徒歩11分 42.17~43.23坪
ドルミ第2代々木

渋谷区代々木1-57-4 代々木駅 徒歩4分 56.4~63.13坪
新宿君嶋ビル

新宿区新宿3-35-3 新宿駅 徒歩2分 49.04~49.54坪
OYAビル

新宿区西新宿3-9-6 初台駅 徒歩7分 25.01坪
新宿ロイヤルビル

新宿区西新宿7-21-1 西新宿駅 徒歩3分 25.08~67.96坪
西新宿KFビル

新宿区西新宿8-14-24 西新宿駅 徒歩4分 29.62坪




