TATE神田ビル 3F 23.20坪
千代田区神田司町2-17-14
募集要項
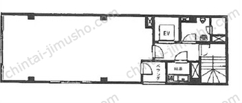
3F
23.20坪76.69㎡
290,000円 坪単価 12,500円
入居可能日
2026年1月30日
月額内訳 ・ その他
| 賃料 | 243,600円 |
|---|---|
| 管理費 | 46,400円 |
| 敷金・保証金 | 8ヶ月 |
| 礼金・償却 | なし |
| 更新料 | なし |
| 契約期間 | 2年 |
※ 課税項目は、税抜き表示です
お問合せ番号33285
お客様専用フリーダイヤル 0120-110-177
| 空室確認日 | 取扱会社 | タワーズプランニング株式会社 | |
|---|---|---|---|
| 取引態様 | 仲介 | 登録免許 | 宅地建物取引業登録 国土交通大臣(4) 7353号 |
特徴・設備
- エレベーターあり (6人乗り・1基)
- 天高2.26m
- 24時間利用可能
- 機械警備
- 光ファイバー対応
- エアコンあり (個別空調)
特徴・設備は調査時のものです。現状を優先致しますのでご了承下さい。
スタッフおすすめのポイント
靖国通り・本郷通り・外堀通りに囲まれた司町エリアに立地、淡路町駅・小川町駅・新御茶ノ水駅の3駅が徒歩3分の好立地にあります。大通り沿いではありませんが、見通しの良い一方通行の通り沿いで周辺は店舗施設が充実した利便性の良い環境にあります。貸室1フロアーは約23坪の手頃な広さ。トイレ・給湯室は室外にあり綺麗な長方形の室内は使い易い形状をしています。個別空調・機械警備完備で24時間の使用もできます。神田駅も徒歩圏内で多様な交通網の利用が魅力的な物件です。
他のフロアの空室状況
| 階数 | 広さ | 賃料 | 敷/礼 | 詳細 | 間取り | クリップ |
|---|---|---|---|---|---|---|
| 4F | 23.20坪76.69㎡ | 29.00万坪単価 12,500円管理費込み |
敷: 8ヶ月
礼: なし
|
詳細 |
|
|
| 5F | 23.20坪76.69㎡ | 29.00万坪単価 12,500円管理費込み |
敷: 8ヶ月
礼: なし
|
詳細 |
|
|
| 2F | 22.40坪74.05㎡ | 募集終了 | 詳細 |
|
||
| 6F | 23.20坪76.69㎡ | 募集終了 | 詳細 |
|
||
地図で場所を確認する(地図をドラッグすると近隣の物件・相場を検索することが出来ます。)
TATE神田ビルの関連リンク
近隣のオススメ物件
本郷大関ビル

文京区本郷3-19-4 本郷三丁目駅 徒歩4分 35.71坪
おおたビル

文京区本郷2-29-8 本郷三丁目駅 徒歩2分 12~15.75坪
本郷三宝ビル

文京区本郷3-19-7 本郷三丁目駅 徒歩5分 17.32~38.66坪
石川ビル

文京区湯島2-9-10 御茶ノ水駅 徒歩7分 18.8坪
千代田中央ビル

千代田区外神田2-16-2 御茶ノ水駅 徒歩7分 25.01坪
内神田渋谷ビル

千代田区内神田2-16-11 神田駅 徒歩3分 13.95坪
サンブリヂ小川町ビル

千代田区神田小川町2-2 小川町駅 徒歩1分 35~41坪
ヒューリック神田須田町ビル

千代田区神田須田町1-14-1 淡路町駅 徒歩3分 16.75~35.97坪
M&Cビル

千代田区神田小川町2-3-13 新御茶ノ水駅 徒歩1分 15.73坪
Biz Feel KANDA

千代田区神田須田町1-4-6 淡路町駅 徒歩2分 23.24~35.69坪
VORT御茶ノ水

千代田区神田駿河台2-10-6 御茶ノ水駅 徒歩2分 17.86坪
VORT神田小川町Ⅱ

千代田区神田小川町1-10-2 新御茶ノ水駅 徒歩1分 7.64坪
神田カドウチ

千代田区神田鍛冶町3-7 神田駅 徒歩2分 27.07坪
D&F御茶ノ水ビル

千代田区神田小川町1-1-15 淡路町駅 徒歩1分 33.43坪
本郷K&Kビル

文京区本郷3-30-10 本郷三丁目駅 徒歩2分 15.18~39.96坪
TQ神田猿楽町

千代田区神田猿楽町2-6-8 水道橋駅 徒歩5分 18.92坪
小山第二ビル

千代田区内神田1-5-6 神田駅 徒歩7分 14.5坪
ICNビル

文京区本郷2-27-17 本郷三丁目駅 徒歩1分 29.52~39.46坪
荒井ビル

千代田区神田駿河台3-5-15 御茶ノ水駅 徒歩6分 17.5坪




