※ 課税項目は、税抜き表示です
空室確認日
以前募集していた物件を表示する
営業時間:平日9:00~18:00
建物仕様
| 名称 | (仮称)リードシー西五反田ビル |
|---|---|
| 住所 | 品川区西五反田3-12-14 |
| 交通 |
利用可能駅
利用可能路線
|
| 規模・構造 | 鉄骨鉄筋コンクリート造(SRC) / 地上8階・地下2階建 |
| 竣工 | 1993年6月30日(新耐震基準準拠) |
| 用途・仕様 | 賃貸オフィス、事務所仕様 |
| エレベーター | 11人乗 1基 |
| 駐車場 | 有り |
| 入り口段差 | 有り |
設備・特徴
スタッフおすすめのポイント
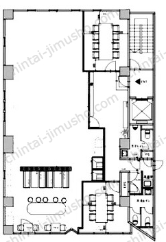
不動前駅徒歩3分・五反田駅と目黒駅は徒歩10分、山手通りの「かむろ坂下」の交差点にあるハイグレードな賃貸オフィスビルです。すぐ裏手には目黒川が流れており緑の多い癒しの環境も至近にあります。1993年築・地下2階地上8階建ての建物は、全面ミラーウォールの外観で綺麗な石張りの玄関廻り・リニューアルされた光沢のある真っ白な石張り壁のエントランスホールが魅力的です。整形な長方形の土地に建てられており、約60坪の基準階貸室はエレベーター・エレベーターホール・内階段・男女別トイレ・給湯室を綺麗に「1列」にレイアウトし、室内は無支柱のうえ絵に描いたような長方形でこれ以上ない使い勝手の良い間取りになっています。
(仮称)リードシー西五反田ビルの関連リンク
近隣のオススメ物件
VORT白金台

港区白金台5-18-9 白金台駅 徒歩4分 38.27坪
山手ビル

品川区上大崎3-14-35 五反田駅 徒歩8分 35.46坪
KDX西五反田ビル

品川区西五反田7-20-9 大崎広小路駅 徒歩8分 53.5~70.79坪
ジブラルタ生命五反田ビル

品川区西五反田2-15-7 五反田駅 徒歩2分 52.22坪
五反田ブリックビル

品川区西五反田2-11-20 五反田駅 徒歩5分 63.37坪
第3TOCビル

品川区西五反田7-23-1 五反田駅 徒歩8分 37.42~41.56坪
第2TOCビル

品川区西五反田7-21-11 五反田駅 徒歩8分 25.28坪
藤和東五反田ビル

品川区東五反田1-7-6 五反田駅 徒歩5分 72.39~86.47坪
日幸五反田ビル別館

品川区西五反田2-29-11 五反田駅 徒歩5分 25.25坪
目黒ベガタワー

目黒区目黒2-9-6 目黒駅 徒歩8分 27.84坪
日幸五反田ビル

品川区西五反田2-29-5 五反田駅 徒歩5分 61.27坪
クリスタルタワー

品川区上大崎2-14-5 目黒駅 徒歩1分 38.34坪
パームコート/リフィオ目黒

目黒区下目黒3-5-16 不動前駅 徒歩11分 72.71坪
いちご東五反田ビル/プレミアムオフィス五反田

品川区東五反田1-6-3 五反田駅 徒歩2分 61.56坪
いちご西五反田ビル

品川区西五反田3-6-20 五反田駅 徒歩6分 44.7坪
いちご五反田ビル

品川区東五反田1-13-12 五反田駅 徒歩1分 44.18~88.49坪
いちご目黒ビル

目黒区下目黒2-20-28 目黒駅 徒歩6分 55.22坪
Daiwa目黒スクエア

目黒区目黒1-6-17 目黒駅 徒歩6分 73.61坪
高徳ビル

品川区大崎5-1-5 五反田駅 徒歩4分 50.36~99.22坪














