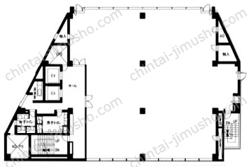
青葉台石橋ビル 7F 119.74坪
目黒区青葉台3-1-19
募集要項
7F
119.74坪395.83㎡
2,155,320円 坪単価 18,000円
入居可能日
2026年4月1日
月額内訳 ・ その他
| 賃料 | 1,676,360円 |
|---|---|
| 管理費 | 478,960円 |
| 敷金・保証金 | 12ヶ月 |
| 礼金・償却 | なし |
| 更新料 | なし |
| 契約期間 | 2年 |
※ 課税項目は、税抜き表示です
お問合せ番号112510
お客様専用フリーダイヤル 0120-110-177
| 空室確認日 | 取扱会社 | タワーズプランニング株式会社 | |
|---|---|---|---|
| 取引態様 | 仲介 | 登録免許 | 宅地建物取引業登録 国土交通大臣(4) 7353号 |
特徴・設備
- エレベーターあり (15人乗り・2基)
- OAフロア
- 24時間利用可能
- 新耐震基準準拠
- 男女別トイレ
- 機械警備
- 光ファイバー対応
- エアコンあり (個別空調)
特徴・設備は調査時のものです。現状を優先致しますのでご了承下さい。
スタッフおすすめのポイント
井の頭線の神泉駅から徒歩5分、玉川通りと旧山手通りが交わる神泉町交差点を越えてすぐの玉川通りの側道沿いにある賃貸オフィスビル。1987年築(新耐震)・地上9階建て、ガラスウォールが映える基準階フロアー約230坪の大型物件です。主な設備はエレベーター2基・男女別トイレ・機械警備・光ファイバー、OA床もフロアーによって対応しています。近隣には店舗施設は少なめですが道玄坂上が程ない距離で不自由さは感じません。徒歩12分の渋谷駅にもマークシティーの館内経由でのアクセスがお勧めです。
他のフロアの空室状況
| 階数 | 広さ | 賃料 | 敷/礼 | 詳細 | 間取り | クリップ |
|---|---|---|---|---|---|---|
| 8F | 119.74坪395.83㎡ | 215.53万坪単価 18,000円管理費込み |
敷: 12ヶ月
礼: なし
|
詳細 |
|
|
| 9F | 119.74坪395.83㎡ | 募集終了 | 詳細 |
|
||
| 1F | 57.78坪191.01㎡ | 募集終了 | 詳細 |
|
||
| 6F | 229.94坪760.13㎡ | 募集終了 | 詳細 |
|
||
地図で場所を確認する(地図をドラッグすると近隣の物件・相場を検索することが出来ます。)
青葉台石橋ビルの関連リンク
近隣のオススメ物件
青山タイヨービル

渋谷区渋谷1-7-6 渋谷駅 徒歩5分 69.76坪
EDGE南青山ビル

渋谷区渋谷4-2-12 表参道駅 徒歩8分 113.6坪
渋谷サクラステージ SAKURAサイド/SAKURAタワー

渋谷区桜丘町3-2 渋谷駅 徒歩1分 63.61坪
VORT渋谷Ⅱ

渋谷区宇田川町10-3 渋谷駅 徒歩9分 96.93~166.82坪
H&M南青山EAST棟

港区南青山5-11-14 表参道駅 徒歩5分 93.02坪
MOビル

渋谷区東3-14-15 恵比寿駅 徒歩7分 68.14坪
渋谷松永ビル

渋谷区東1-13-14 渋谷駅 徒歩6分 61.53坪
祐真ビル本館

渋谷区渋谷3-27-11 渋谷駅 徒歩1分 136.4坪
いちご神宮前ビル

渋谷区神宮前6-25-16 明治神宮前駅 徒歩5分 94.82坪
渋谷第一生命ビルディング

渋谷区渋谷3-8-12 渋谷駅 徒歩4分 69.28坪
いちご渋谷道玄坂ビル

渋谷区円山町28-3 渋谷駅 徒歩9分 61.39坪
東京建物東渋谷ビル

渋谷区東1-26-20 渋谷駅 徒歩7分 113~152.66坪
Eスペースタワー

渋谷区円山町3-6 渋谷駅 徒歩7分 154.78~155.13坪
Daiwa渋谷スクエア

渋谷区南平台町16-28 渋谷駅 徒歩10分 88.94坪
クレインズパーク

渋谷区神宮前6-18-1 明治神宮前駅 徒歩5分 66.95坪
新大宗道玄坂上ビル

渋谷区円山町20-1 渋谷駅 徒歩9分 77坪
MFPR渋谷ビル

渋谷区渋谷1-2-5 渋谷駅 徒歩7分 71.29~177.88坪
渋谷野村證券ビル

渋谷区渋谷1-14-16 渋谷駅 徒歩2分 111.62~114.23坪
渋谷TRビル

渋谷区渋谷2-22-16 渋谷駅 徒歩2分 59.68坪




