※ 課税項目は、税抜き表示です
空室確認日
以前募集していた物件を表示する
営業時間:平日9:00~18:00
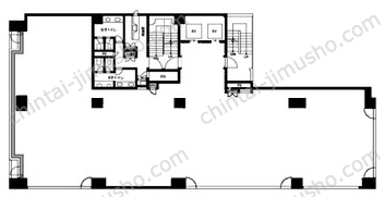
建物仕様
| 名称 | VORT秋葉原BLD. |
|---|---|
| 住所 | 千代田区神田須田町2-7-3 |
| 交通 |
利用可能駅
利用可能路線
|
| 規模・構造 | 鉄骨鉄筋コンクリート造(SRC) / 地上9階・地下1階建 |
| 竣工 | 1995年1月(新耐震基準準拠) |
| 用途・仕様 | 賃貸オフィス、事務所仕様 |
| エレベーター | 11人乗 2基 |
| 駐車場 | 有り(42,000円) |
設備・特徴
地図でアクセスを確認する
近隣の同クラスのビル
VORT秋葉原BLD.の関連リンク
近隣のオススメ物件
早川トナカイビル

千代田区岩本町2-12-5 岩本町駅 徒歩3分 114.49坪
内神田渋谷ビル

千代田区内神田2-16-11 神田駅 徒歩3分 82.69坪
楠和日本橋ビル

中央区日本橋室町4-2-16 神田駅 徒歩3分 87.03坪
Logran御徒町ビル

台東区台東3-15-1 御徒町駅 徒歩5分 63.55坪
ヒューリック神田須田町ビル

千代田区神田須田町1-14-1 淡路町駅 徒歩3分 63.52坪
安岡ビル

千代田区岩本町2-2-14 神田駅 徒歩5分 74坪
興信ビル

千代田区神田小川町1-10 新御茶ノ水駅 徒歩1分 78.79坪
A-RISE神田

千代田区岩本町1-11-2 小伝馬町駅 徒歩3分 67.04坪
光洋ビル

中央区日本橋本町4-6-7 新日本橋駅 徒歩4分 63.4坪
豊島屋ビル

千代田区内神田1-13-1 神田駅 徒歩5分 105.22坪
アーバンセンター神田須田町

千代田区神田須田町2-7-2 岩本町駅 徒歩1分 110.24坪
神田大木ビル

千代田区神田鍛冶町3-3-3 神田駅 徒歩2分 76.73坪
NREG秋葉原ビル

千代田区外神田1-8-13 秋葉原駅 徒歩3分 168.25坪
神田金子ビル

千代田区神田東松下町45 神田駅 徒歩4分 114.84坪
ラウンドクロス秋葉原

千代田区神田松永町4-1 秋葉原駅 徒歩2分 76.65坪
PMO秋葉原

千代田区岩本町3-11-6 秋葉原駅 徒歩7分 131.25坪
oak神田鍛冶町/ビジネスエアポート神田

千代田区神田鍛冶町3-4 神田駅 徒歩2分 124.79坪
聖公会神田ビル

千代田区外神田3-5-12 末広町駅 徒歩2分 110.71坪
E.T.S.室町ビル

中央区日本橋室町3-3-1 新日本橋駅 徒歩3分 68.53坪
東神田堀商ビル

千代田区東神田2-4-5 岩本町駅 徒歩5分 81.28坪









































