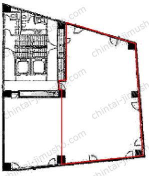
新中央ビル 4F 48.53坪
渋谷区代々木2-13-4
募集要項
4F
48.53坪160.43㎡
お問合せください -
入居可能日
即入居可
月額内訳 ・ その他
| 賃料 | -円 |
|---|---|
| 管理費 | |
| 敷金・保証金 | お問合せください |
| 礼金・償却 | 礼金:要確認償却:なし |
| 更新料 | なし |
| 契約期間 | お問合せください |
※ 課税項目は、税抜き表示です
お問合せ番号361463
お客様専用フリーダイヤル 0120-110-177
| 空室確認日 | 取扱会社 | タワーズプランニング株式会社 | |
|---|---|---|---|
| 取引態様 | 仲介 | 登録免許 | 宅地建物取引業登録 国土交通大臣(4) 7353号 |
特徴・設備
- エレベーターあり (11人乗り・2基)
- OAフロア
- 新耐震基準準拠
- 男女別トイレ
- 光ファイバー対応
- エアコンあり (個別空調)
特徴・設備は調査時のものです。現状を優先致しますのでご了承下さい。
スタッフおすすめのポイント
新宿通り沿いに面した賃貸オフィスです。駅からは地下を移動すれば雨の日もほぼ濡れずに通勤することが可能です。共用部分は広く、エレベーターも2基あります。設計施工は鹿島建設のハイグレードビルです。
他のフロアの空室状況
| 階数 | 広さ | 賃料 | 敷/礼 | 詳細 | 間取り | クリップ |
|---|---|---|---|---|---|---|
| 6F | 48.53坪160.43㎡ | 募集終了 | 詳細 |
|
||
| 6F | 22.75坪75.21㎡ | 募集終了 | 詳細 |
|
||
| 3F | 71.29坪235.67㎡ | 募集終了 | 詳細 |
|
||
| 2F | 71.29坪235.67㎡ | 募集終了 | 詳細 |
|
||
| 4F | 71.29坪235.67㎡ | 募集終了 | 詳細 |
|
||
| 5F | 71.29坪235.67㎡ | 募集終了 | 詳細 |
|
||
| 9F | 22.76坪75.24㎡ | 募集終了 | 詳細 |
|
||
| 8F | 22.75坪75.21㎡ | 募集終了 | 詳細 |
|
||
| 9F | 48.53坪160.43㎡ | 募集終了 | 詳細 |
|
||
地図で場所を確認する(地図をドラッグすると近隣の物件・相場を検索することが出来ます。)
新中央ビルの関連リンク
近隣のオススメ物件
代々木チェリー

渋谷区代々木1-40-12 代々木駅 徒歩3分 59.19坪
コイトビル

新宿区西新宿6-12-4 西新宿駅 徒歩3分 15.8~33坪
ハイネスロフティ

新宿区西新宿4-32-4 新宿駅 徒歩13分 33.12~48.04坪
代々木パレス

渋谷区代々木2-21-10 新宿駅 徒歩3分 41.23坪
コスモス御苑ビル/カテリーナネオハイツ

新宿区新宿1-16-10 新宿御苑前駅 徒歩2分 25.16坪
シャンヴィラカテリーナ

新宿区新宿1-16-9 新宿御苑前駅 徒歩2分 43.32坪
新宿ロイヤルビル

新宿区西新宿7-21-1 西新宿駅 徒歩3分 25.08~67.96坪
新宿カメヤビル

渋谷区代々木3-26-2 新宿駅 徒歩11分 42.17~43.23坪
@WORK SHINJUKUGYOEN

新宿区新宿2-1-9 新宿御苑前駅 徒歩1分 72.85~74.69坪
ドルミ第2代々木

渋谷区代々木1-57-4 代々木駅 徒歩4分 56.4~63.13坪
新宿君嶋ビル

新宿区新宿3-35-3 新宿駅 徒歩2分 49.04~49.54坪
The Corner SHINJUKU

新宿区新宿5-10-15 新宿三丁目駅 徒歩4分 45.76坪
アクセス西新宿

新宿区西新宿8-5-3 西新宿駅 徒歩1分 17.97坪
新宿光ビルディング

新宿区新宿5-16-11 新宿三丁目駅 徒歩1分 43.67坪
NOVEL WORK Shinjuku West

新宿区西新宿3-9-6 初台駅 徒歩7分 25.01坪
KDX新宿ビル

新宿区西新宿3-2-7 新宿駅 徒歩5分 38.52坪
第2トミスビル

渋谷区代々木2-16-13 新宿駅 徒歩5分 18.31坪
Zenken Plaza Ⅱ(ゼンケンプラザⅡ)

新宿区西新宿1-3-13 新宿西口駅 徒歩2分 50.79坪
VORT西新宿Ⅱ

渋谷区代々木3-23-4 新宿駅 徒歩5分 25.76坪
新宿NSビル

新宿区西新宿2-4-1 新宿駅 徒歩10分 65.3坪




