城北自動車会館 4F 53.00坪
豊島区東池袋1-30-12
募集要項
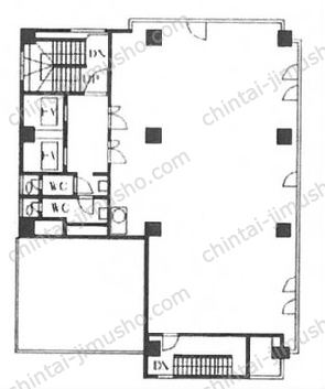
4F
53.00坪175.21㎡
821,500円 坪単価 15,500円
入居可能日
即入居可
月額内訳 ・ その他
| 賃料 | 689,000円 |
|---|---|
| 管理費 | 132,500円 |
| 敷金・保証金 | 10ヶ月 |
| 礼金・償却 | 礼金:なし償却:10% |
| 更新料 | 1ヶ月 |
| 契約期間 | 2年(定期借家契約) |
※ 課税項目は、税抜き表示です
お問合せ番号10985
お客様専用フリーダイヤル 0120-110-177
| 空室確認日 | 取扱会社 | タワーズプランニング株式会社 | |
|---|---|---|---|
| 取引態様 | 仲介 | 登録免許 | 宅地建物取引業登録 国土交通大臣(4) 7353号 |
特徴・設備
- エレベーターあり (6人乗り・2基)
- OAフロア
- 駐車場あり (月額36,300円)
- 男女別トイレ
- エアコンあり (個別空調)
特徴・設備は調査時のものです。現状を優先致しますのでご了承下さい。
スタッフおすすめのポイント
JR池袋駅東口から徒歩5〜6分、サンシャイン60通りを出た首都高速と並行する通り沿いにある賃貸事務所ビルです。サンシャインシティー至近で池袋病院が向かいにあり、有楽町線の東池袋駅にも徒歩6〜7分のアクセスです。1977年築・地下1階地上9階建て、透明感のあるガラスウォールの外装で経年を感じさせない装い。低層階は店舗フロアーで、基準階が50坪台の事務所フロアーです。エレベーター2基・個別空調・男女別トイレ・立体駐車場が主な設備で、フロアーによってはOA床にも対応しています。角地立地の2面採光で明るさもある整形空間です。
他のフロアの空室状況
| 階数 | 広さ | 賃料 | 敷/礼 | 詳細 | 間取り | クリップ |
|---|---|---|---|---|---|---|
| 2F | 47.00坪155.37㎡ | 募集終了 | 詳細 |
|
||
| 3F | 53.00坪175.21㎡ | 募集終了 | 詳細 |
|
||
| B1F | 24.00坪79.34㎡ | 募集終了 | 詳細 |
|
||
| 7F | 53.00坪175.21㎡ | 募集終了 | 詳細 |
|
||
| 6F | 53.00坪175.21㎡ | 募集終了 | 詳細 |
|
||
| 5F | 53.00坪175.21㎡ | 募集終了 | 詳細 |
|
||
| 8F | 53.00坪175.21㎡ | 募集終了 | 詳細 |
|
||
| B1F | 22.00坪72.73㎡ | 募集終了 | 詳細 |
|
||
地図で場所を確認する(地図をドラッグすると近隣の物件・相場を検索することが出来ます。)
城北自動車会館の関連リンク
近隣のオススメ物件
オーク池袋ビル

豊島区東池袋1-21-11 池袋駅 徒歩4分 43.09坪
住友池袋駅前ビル

豊島区東池袋1-10-1 池袋駅 徒歩2分 75.12坪
東都自動車ビルヂング

豊島区西池袋5-13-13 要町駅 徒歩3分 37.58~64.29坪
タクト4ビル

豊島区南池袋2-32-12 東池袋駅 徒歩3分 46.04坪
東池袋セントラルプレイス

豊島区東池袋3-22-17 池袋駅 徒歩12分 51.84坪
新東第一ビル

豊島区西池袋1-16-1 池袋駅 徒歩1分 36.47坪
ユニティ池袋

豊島区南池袋2-35-4 東池袋駅 徒歩2分 44.3~49.12坪
藤和護国寺コープ・冨士ビル

文京区大塚6-37-5 東池袋駅 徒歩5分 22.77~36.87坪
サンシャイン60

豊島区東池袋3-1-1 池袋駅 徒歩7分 78.65坪
池袋西口スカイビル

豊島区池袋2-14-4 池袋駅 徒歩5分 55.77坪
エキニア池袋

豊島区西池袋1-17-10 池袋駅 徒歩2分 55.34坪
清水ビル

豊島区東池袋1-9-9 池袋駅 徒歩3分 25.62坪
第三中野ビル

豊島区南池袋2-12-5 池袋駅 徒歩5分 34坪
大住ビル

豊島区東池袋2-39-2 池袋駅 徒歩10分 25.35坪
山の手ビル東館

豊島区南池袋1-19-12 池袋駅 徒歩2分 48.89~60.07坪
NBF池袋イースト

豊島区東池袋3-4-3 池袋駅 徒歩7分 71.07坪
池袋今泉ビル

豊島区東池袋4-25-12 池袋駅 徒歩7分 37.9坪
サンポウ池袋ビル

豊島区池袋4-32-8 池袋駅 徒歩10分 41.87坪
西池本田ビル

豊島区西池袋3-30-3 池袋駅 徒歩4分 40.19坪




