※ 課税項目は、税抜き表示です
空室確認日
以前募集していた物件を表示する
営業時間:平日9:00~18:00
建物仕様
| 名称 | ライズアリーナビル |
|---|---|
| 住所 | 豊島区東池袋4-5-2 |
| 交通 |
利用可能駅
利用可能路線
|
| 規模・構造 | 鉄骨鉄筋コンクリート造(SRC) / 地上15階・地下2階建 |
| 竣工 | 2007年1月(新耐震基準準拠) |
| 用途・仕様 | 賃貸オフィス、事務所仕様 |
| エレベーター | 24人乗 6基 |
| 駐車場 | 有り |
設備・特徴
スタッフおすすめのポイント
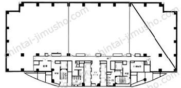
有楽町線の東池袋駅が徒歩1分、ほぼ駅に直結した大型オフィスビルです。2007年築・地下2階地上15階建て、中高層ビルらしい圧巻の大型エントランスホールが出迎えてくれます。基準階は約530坪で天井高270cmで無支柱の大型フロアー。エレベーターは非常用を含め8基搭載。個別空調対応で24時間の使用も可能です。OA床10cm・床荷重500kg/㎡とスペックも高め。駐車場も完備で大型企業様の入居にも対応し得る物件です。
地図でアクセスを確認する
近隣の同クラスのビル
ライズアリーナビルの関連リンク
近隣のオススメ物件
IT TOWER TOKYO

豊島区西池袋3-28-4 池袋駅 徒歩1分 97.85坪
藤久ビル西2号館

豊島区西池袋3-28-1 池袋駅 徒歩4分 76.42坪
オリックス池袋ビル

豊島区南池袋1-19-6 池袋駅 徒歩3分 186.15坪
PMO池袋

豊島区東池袋1-25-6 東池袋駅 徒歩3分 91.98坪
タカセビル本館

豊島区東池袋1-25-8 東池袋駅 徒歩3分 104.6~176.4坪
西池袋TSビル

豊島区西池袋3-1-15 池袋駅 徒歩4分 109.96坪
大河内ビル

豊島区池袋2-52-8 池袋駅 徒歩6分 102~138.7坪
住友池袋駅前ビル

豊島区東池袋1-10-1 池袋駅 徒歩2分 75.12坪
サンシャイン60

豊島区東池袋3-1-1 池袋駅 徒歩7分 78.65坪
東池袋セントラルプレイス

豊島区東池袋3-22-17 池袋駅 徒歩12分 173.03坪
明治安田生命池袋ビル

豊島区東池袋1-27-12 東池袋駅 徒歩5分 159.4坪
幸伸ビル

豊島区南池袋1-19-4 池袋駅 徒歩2分 142.61坪



















