※ 課税項目は、税抜き表示です
空室確認日
以前募集していた物件を表示する
営業時間:平日9:00~18:00
建物仕様
| 名称 | ユニティ池袋 |
|---|---|
| 住所 | 豊島区南池袋2-35-4 |
| 交通 |
利用可能駅
利用可能路線
|
| 規模・構造 | 鉄骨鉄筋コンクリート造(SRC) / 地上8階・地下1階建 |
| 竣工 | 1990年7月(新耐震基準準拠) |
| 用途・仕様 | 賃貸オフィス、事務所仕様 |
| エレベーター | 11人乗 1基 |
| 駐車場 | 有り |
| 入り口段差 | 有り |
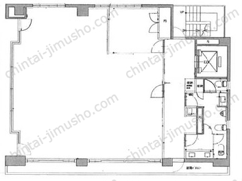
設備・特徴
スタッフおすすめのポイント
褐色の外枠外壁に囲まれた全面ガラス張りの外観と石張りで高級感のあるエントランスホールが好印象のグレード高めの賃貸オフィスビルです。貸室の規模の割には男女別トイレの広さにゆとりがある造りで、室内は凹凸もなく使い勝手の良い正方形の間取りです。周辺は新しい豊島区役所が至近でコンビニや飲食店も点在しており、池袋東口のメイン大通りも近く銀行や郵便局などの利用にも不自由はありません。歓楽街のある駅前や東池袋方面とは一画をおいた穏やかな地域でありながら利便性も良いお勧めの地域です。
地図でアクセスを確認する
近隣の同クラスのビル
ユニティ池袋の関連リンク
近隣のオススメ物件
東都自動車ビルヂング

豊島区西池袋5-13-13 要町駅 徒歩3分 37.58~64.29坪
東池袋セントラルプレイス

豊島区東池袋3-22-17 池袋駅 徒歩12分 51.84坪
新東第一ビル

豊島区西池袋1-16-1 池袋駅 徒歩1分 36.47坪
藤和護国寺コープ・冨士ビル

文京区大塚6-37-5 東池袋駅 徒歩5分 22.77~36.87坪
タクト4ビル

豊島区南池袋2-32-12 東池袋駅 徒歩3分 46.04坪
八大ビル

豊島区南池袋2-24-1 池袋駅 徒歩3分 14.7坪
サンシャイン60

豊島区東池袋3-1-1 池袋駅 徒歩7分 78.65坪
池袋西口スカイビル

豊島区池袋2-14-4 池袋駅 徒歩5分 55.77坪
エキニア池袋

豊島区西池袋1-17-10 池袋駅 徒歩2分 55.34坪
清水ビル

豊島区東池袋1-9-9 池袋駅 徒歩3分 25.62坪
ライオンビル

豊島区西池袋3-30-10 池袋駅 徒歩3分 15.97坪
英ビル

豊島区南池袋2-12-5 池袋駅 徒歩7分 14.36坪
ヴィラロッソカバーロ

豊島区東池袋3-22-12 東池袋駅 徒歩8分 14.12坪
第三中野ビル

豊島区南池袋2-12-5 池袋駅 徒歩5分 34坪
城北自動車会館

豊島区東池袋1-30-12 池袋駅 徒歩6分 53坪
大住ビル

豊島区東池袋2-39-2 池袋駅 徒歩10分 25.35坪
山の手ビル東館

豊島区南池袋1-19-12 池袋駅 徒歩2分 48.89~60.07坪
NBF池袋イースト

豊島区東池袋3-4-3 池袋駅 徒歩7分 71.07坪
伸誠ビル

豊島区南池袋2-5-4 東池袋駅 徒歩3分 16.46坪

















































