※ 課税項目は、税抜き表示です
空室確認日
以前募集していた物件を表示する
営業時間:平日9:00~18:00
建物仕様
| 名称 | ラウンドクロス銀座2丁目 |
|---|---|
| 住所 | 中央区銀座2-11-8 |
| 交通 |
利用可能駅
利用可能路線
|
| 規模・構造 | 鉄骨造(S) / 地上13階・地下1階建 |
| 竣工 | 2007年9月26日(新耐震基準準拠) |
| 用途・仕様 | 賃貸オフィス、店舗仕様 |
| エレベーター | 13人乗 2基 |
| 駐車場 | 有り |
設備・特徴
スタッフおすすめのポイント
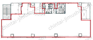
2007年築・地下1階地上13階建て、昭和通り沿いに建つハイグレード・ハイクオリティーな賃貸オフィスビルです。有楽町線の銀座一丁目駅が徒歩2〜3分、銀座駅・東銀座駅も徒歩4分前後という好立地にあります。ガラス張りを基調とし遠めからはモザイク模様にも見えるファサードが特徴です。基準階フロアーは約67坪のオフィス空間。エレベーターは常用・非常用の2基を搭載。トイレは男女別で室内は無支柱の整形空間です。OAフロアー・機械警備・光ファイバー・駐車場完備とその他設備も充実。通り沿いの窓面は南向きで明るさもある物件です。建物後方には銀座メルサや松屋銀座があり賑わいの中心地も間近です。
地図でアクセスを確認する
近隣の同クラスのビル
ラウンドクロス銀座2丁目の関連リンク
近隣のオススメ物件
今朝ビル

港区東新橋1-1-21 新橋駅 徒歩1分 67.48坪
銀座松良ビル

中央区銀座7-17-8 東銀座駅 徒歩5分 34.23坪
ライオンズマンション東銀座

中央区築地4-12-2 築地駅 徒歩4分 38.59坪
GM-3ビル

中央区京橋3-9-6 宝町駅 徒歩1分 44.3坪
銀座GTビル

中央区銀座2-14-2 東銀座駅 徒歩3分 65.38坪
銀友ビル

中央区銀座1-13-12 銀座一丁目駅 徒歩1分 42~56.12坪
東亜ビル

中央区銀座1-3-3 有楽町駅 徒歩4分 34.12坪
東都銀座ビルヂング

中央区銀座7-18-14 東銀座駅 徒歩4分 28.54坪
銀座コティビル

中央区銀座5-9-1 銀座駅 徒歩1分 84.2坪
JS築地ビル

中央区築地3-7-10 築地駅 徒歩2分 53.6~69.8坪
辰ビル

中央区銀座1-18-2 宝町駅 徒歩3分 55.33坪
Daiwa築地ビル

中央区築地2-14-17 築地駅 徒歩2分 66.98坪
銀座昭和通りビル

中央区銀座8-14-14 新橋駅 徒歩7分 54.61坪
第五安田ビル

中央区銀座7-15-3 東銀座駅 徒歩4分 41.7坪
築地センタービル

中央区築地6-25-10 築地駅 徒歩5分 64.07~75.19坪
築地小山ビル

中央区築地3-12-5 築地駅 徒歩1分 46.92坪
高橋ビル

中央区築地1-13-11 東銀座駅 徒歩5分 32.51坪
登亭銀座ビル

中央区銀座3-13-2 銀座駅 徒歩6分 34.68坪
銀座東新ビル

中央区銀座5-15-18 東銀座駅 徒歩1分 71.41坪





























