※ 課税項目は、税抜き表示です
空室確認日
以前募集していた物件を表示する
営業時間:平日9:00~18:00
建物仕様
| 名称 | 第3虎の門電気ビルディング |
|---|---|
| 住所 | 港区虎ノ門1-2-20 |
| 交通 |
利用可能駅
利用可能路線
|
| 規模・構造 | 鉄骨造(S) / 地上12階・地下1階建 |
| 竣工 | 2013年2月(新耐震基準準拠) |
| 用途・仕様 | 賃貸オフィス、事務所仕様 |
| エレベーター | 2基 |
| 駐車場 | 有り |
設備・特徴
スタッフおすすめのポイント
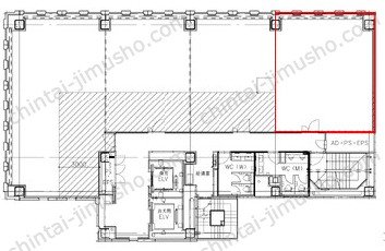
虎ノ門駅が至近、環状2号線脇にあるハイグレードなインテリジェンスオフィスビルです。制震構造で建てられており、スリムな外観とガラス面を多用し自然光溢れる玄関〜エントランスホールはビル全体の良質なグレード感を物語っています。2〜12階の基準階は整形・無支柱の1フロアー約85坪。天井高270cm・OA床10cm・床荷重500kg/㎡・システム天井・LED照明・ICカードセキュリティー・男女別トイレなど大型高層ビルにも劣らないハイスペックなインフラを有しております。霞が関・官公庁へのアクセスも良く外資系や優良企業も多い都心を代表するビジネスゾーンです。
地図でアクセスを確認する
近隣の同クラスのビル
第3虎の門電気ビルディングの関連リンク
近隣のオススメ物件
天野ビル

港区西新橋1-5-10 内幸町駅 徒歩1分 25.37坪
赤レンガ通りビル

港区新橋3-7-4 新橋駅 徒歩5分 25.55坪
岩尾ビル

港区虎ノ門1-16-2 虎ノ門駅 徒歩2分 23坪
新虎ノ門実業会館

港区虎ノ門1-1-21 虎ノ門駅 徒歩1分 27~54.6坪
虎ノ門実業会館本館

港区虎ノ門1-1-20 虎ノ門駅 徒歩1分 65.7坪
DKビル

中央区銀座8-3-4 銀座駅 徒歩4分 61.74~67.6坪
虎ノ門33森ビル

港区虎ノ門3-8-21 神谷町駅 徒歩4分 27.8坪
御成門コープ

港区西新橋3-24-1 新橋駅 徒歩13分 28.49~45坪
巴町アネックス2号館

港区虎ノ門3-8-27 神谷町駅 徒歩5分 40.9坪
仙石山アネックス

港区虎ノ門5-3-20 神谷町駅 徒歩3分 21.8坪
石井ビル

港区新橋3-1-10 新橋駅 徒歩5分 33.46坪
新橋安達ビル

港区新橋5-28-7 新橋駅 徒歩6分 29.34坪
SSビル

港区西新橋3-4-2 新橋駅 徒歩10分 30.41坪
虎ノ門30森ビル

港区虎ノ門3-2-2 虎ノ門駅 徒歩5分 34.1坪
虎ノ門40MTビル

港区虎ノ門5-13-1 神谷町駅 徒歩1分 29.6坪
第2秋山ビルディング

港区虎ノ門3-6-2 虎ノ門駅 徒歩7分 24.09~74.3坪
赤坂フェニックスビル

港区赤坂2-17-69 溜池山王駅 徒歩4分 37.46坪
虎ノ門吉荒ビル

港区西新橋1-6-13 虎ノ門駅 徒歩2分 37.24坪
尚友会館

千代田区霞が関3-3-1 霞ケ関駅 徒歩5分 52.37~59.84坪
クロスオフィス内幸町

港区西新橋1-18-6 新橋駅 徒歩6分 25.39坪









































