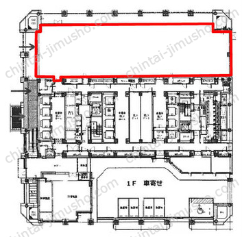
晴海アイランドトリトンスクエアオフィスタワーY 1F 203.85坪
中央区晴海1-8-11
募集要項
1F
203.85坪673.88㎡
お問合せください -
入居可能日
2026年5月1日
月額内訳 ・ その他
| 賃料 | -円 | 
|---|---|
| 管理費 | |
| 敷金・保証金 | お問合せください | 
| 礼金・償却 | 礼金:要確認償却:なし | 
| 更新料 | なし | 
| 契約期間 | 2年 | 
※ 課税項目は、税抜き表示です
お問合せ番号217187
お客様専用フリーダイヤル 0120-110-177
| 空室確認日 | 取扱会社 | タワーズプランニング株式会社 | |
|---|---|---|---|
| 取引態様 | 仲介 | 登録免許 | 宅地建物取引業登録 国土交通大臣(4) 7353号  | 
                    
特徴・設備
- エレベーターあり (24人乗り・8基)
 - OAフロア (フリーアクセス)
 - 天高4m (OA 35cm)
 - 24時間利用可能
 - 駐車場あり
 - 新耐震基準準拠
 - 男女別トイレ
 - ウォシュレット設置
 - 機械警備
 - 光ファイバー対応
 - エアコンあり (セントラル空調)
 
特徴・設備は調査時のものです。現状を優先致しますのでご了承下さい。
スタッフおすすめのポイント
都営大江戸線の勝どき駅が徒歩4分、複合施設・オフィスビル・住宅群で構成された晴海アイランドスクエアエリアにある高層オフィスビルです。2001年築・地下4階地上32階建てで基準階フロアー600坪超の超大型空間。無支柱でコア部分をコの字型で囲んだ室内形状です。エレベーターは低中高層用別に8基ずつあり、室内は天井高270cm・OAフロアー10cm・床荷重300〜500kg/㎡などハイスペックな仕様です。館内には飲食店はじめ店舗施設も充実しています。
他のフロアの空室状況
| 階数 | 広さ | 賃料 | 敷/礼 | 詳細 | 間取り | クリップ | 
|---|---|---|---|---|---|---|
| 39F | 520.79坪1,721.62㎡ | -お問合せください | 
                                         敷: - 
                                        礼: - 
                                     | 
                                                                詳細 | 
                                                                             | 
                                |
| 38F | 638.18坪2,109.69㎡ | -お問合せください | 
                                         敷: - 
                                        礼: - 
                                     | 
                                                                詳細 | 
                                                                             | 
                                |
| 24F | 301.85坪997.85㎡ | -お問合せください | 
                                         敷: - 
                                        礼: - 
                                     | 
                                                                詳細 | 
                                                                             | 
                                |
| 18F | 565.20坪1,868.43㎡ | 募集終了 | 詳細 | 
                                                                             | 
                                ||
| 17F | 282.60坪934.21㎡ | 募集終了 | 詳細 | 
                                                                             | 
                                ||
| 10F | 565.19坪1,868.40㎡ | 募集終了 | 詳細 | 
                                                                             | 
                                ||
| 24F | 603.70坪1,995.70㎡ | 募集終了 | 詳細 | 
                                                                             | 
                                ||
| 13F | 565.19坪1,868.40㎡ | 募集終了 | 詳細 | 
                                                                             | 
                                ||
| 11F | 565.19坪1,868.40㎡ | 募集終了 | 詳細 | 
                                                                             | 
                                ||
| 35F | 641.72坪2,121.39㎡ | 募集終了 | 詳細 | 
                                                                             | 
                                ||
| 30F | 301.85坪997.85㎡ | 募集終了 | 詳細 | 
                                                                             | 
                                ||
| 28F | 603.70坪1,995.70㎡ | 募集終了 | 詳細 | 
                                                                             | 
                                ||
| 34F | 641.72坪2,121.39㎡ | 募集終了 | 詳細 | 
                                                                             | 
                                ||
| 26F | 602.41坪1,991.44㎡ | 募集終了 | 詳細 | 
                                                                             | 
                                ||
| 29F | 603.70坪1,995.70㎡ | 募集終了 | 詳細 | 
                                                                             | 
                                ||
| 31F | 301.85坪997.85㎡ | 募集終了 | 詳細 | 
                                                                             | 
                                ||
| 16F | 565.20坪1,868.43㎡ | 募集終了 | 詳細 | 
                                                                             | 
                                ||
| 31F | 631.55坪2,087.77㎡ | 募集終了 | 詳細 | 
                                                                             | 
                                ||
| 9F | 565.19坪1,868.40㎡ | 募集終了 | 詳細 | 
                                                                             | 
                                ||
| 19F | 603.56坪1,995.24㎡ | 募集終了 | 詳細 | 
                                                                             | 
                                ||
| 25F | 603.70坪1,995.70㎡ | 募集終了 | 詳細 | 
                                                                             | 
                                ||
| 37F | 333.45坪1,102.31㎡ | 募集終了 | 詳細 | 
                                                                             | 
                                ||
| 20F | 603.70坪1,995.70㎡ | 募集終了 | 詳細 | 
                                                                             | 
                                ||
| 15F | 565.19坪1,868.40㎡ | 募集終了 | 詳細 | 
                                                                             | 
                                ||
| 33F | 640.75坪2,118.18㎡ | 募集終了 | 詳細 | 
                                                                             | 
                                ||
| 12F | 565.19坪1,868.40㎡ | 募集終了 | 詳細 | 
                                                                             | 
                                ||
| 17F | 565.20坪1,868.43㎡ | 募集終了 | 詳細 | 
                                                                             | 
                                ||
| 30F | 603.70坪1,995.70㎡ | 募集終了 | 詳細 | 
                                                                             | 
                                ||
| 27F | 604.50坪1,998.35㎡ | 募集終了 | 詳細 | 
                                                                             | 
                                ||
| 21F | 603.70坪1,995.70㎡ | 募集終了 | 詳細 | 
                                                                             | 
                                ||
| 30F | 301.85坪997.85㎡ | 募集終了 | 詳細 | 
                                                                             | 
                                ||
| 22F | 603.99坪1,996.66㎡ | 募集終了 | 詳細 | 
                                                                             | 
                                ||
| 23F | 603.70坪1,995.70㎡ | 募集終了 | 詳細 | 
                                                                             | 
                                ||
| 2F | 231.54坪765.42㎡ | 募集終了 | 詳細 | 
                                                                             | 
                                ||
| 36F | 641.72坪2,121.39㎡ | 募集終了 | 詳細 | 
                                                                             | 
                                ||
| 8F | 565.19坪1,868.40㎡ | 募集終了 | 詳細 | 
                                                                             | 
                                ||
| 37F | 641.72坪2,121.39㎡ | 募集終了 | 詳細 | 
                                                                             | 
                                ||
| 32F | 638.70坪2,111.40㎡ | 募集終了 | 詳細 | 
                                                                             | 
                                ||
| 11F1101 | 282.59坪934.18㎡ | 募集終了 | 詳細 | 
                                                                             | 
                                ||
| 15F1502 | 135.91坪449.29㎡ | 募集終了 | 詳細 | 
                                                                             | 
                                ||
| 3F305 | 135.19坪446.91㎡ | 募集終了 | 詳細 | 
                                                                             | 
                                ||
| 一括貸38F・39F | 1,158.97坪3,831.31㎡ | 募集終了 | 詳細 | 
                                                                             | 
                                ||
| 24F北側 | 301.85坪997.85㎡ | 募集終了 | 詳細 | 
                                                                             | 
                                ||
| 8F南東 | 135.92坪449.32㎡ | 募集終了 | 詳細 | 
                                                                             | 
                                ||
地図で場所を確認する(地図をドラッグすると近隣の物件・相場を検索することが出来ます。)
晴海アイランドトリトンスクエアオフィスタワーYの関連リンク
近隣のオススメ物件
ワイズビルディング

中央区月島1-2-13 月島駅 徒歩1分 102.19坪
築地センタービル

中央区築地6-25-10 築地駅 徒歩5分 150.38~215.08坪
晴海センタービル

中央区晴海2-5-24 勝どき駅 徒歩8分 168.5~282.33坪
FOREFRONT TOWERⅡ

中央区勝どき3-13-1 勝どき駅 徒歩5分 142.78~285.56坪
晴海アイランドトリトンスクエアオフィスタワーZ

中央区晴海1-8-12 勝どき駅 徒歩4分 135.24~163.94坪
FOREFRONT TOWER Ⅰ

中央区勝どき3-12-1 勝どき駅 徒歩5分 274.31坪
ニチレイ明石町ビル

中央区明石町6-4 新富町駅 徒歩6分 109.57~133.88坪
聖路加タワー

中央区明石町8-1 築地駅 徒歩7分 144.55~271.29坪
晴海アイランドトリトンスクエアオフィスタワーX

中央区晴海1-8-10 勝どき駅 徒歩6分 152.49~227.17坪
勝どきサンスクエア

中央区勝どき1-7-1 月島駅 徒歩10分 133.96坪
興和住生築地ビル

中央区築地7-18-24 築地駅 徒歩9分 297坪
パシフィックマークス月島

中央区月島1-15-7 月島駅 徒歩4分 272.42坪
晴海プライムスクエア

中央区晴海2-1-40 勝どき駅 徒歩10分 204.98坪




