宇徳ビル/宇徳ビルディング B1F 6.02坪
横浜市中区弁天通6-85
募集要項
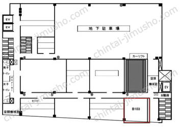
B1FB103
6.02坪19.90㎡
46,518円 坪単価 7,727円
入居可能日
相談
月額内訳 ・ その他
| 賃料 | 46,518円 |
|---|---|
| 管理費 | - |
| 敷金・保証金 | 465,182円 |
| 礼金・償却 | 礼金:1ヶ月償却:要確認 |
| 更新料 | お問合せください |
| 契約期間 | 2年(定期借家契約) |
※ 課税項目は、税抜き表示です
お問合せ番号361590
お客様専用フリーダイヤル 0120-110-177
| 空室確認日 | 取扱会社 | タワーズプランニング株式会社 | |
|---|---|---|---|
| 取引態様 | 仲介 | 登録免許 | 宅地建物取引業登録 国土交通大臣(4) 7353号 |
特徴・設備
- エレベーターあり (3基)
- OAフロア
- 24時間利用可能
- 男女別トイレ
- 光ファイバー対応
- エアコンあり (個別空調)
特徴・設備は調査時のものです。現状を優先致しますのでご了承下さい。
他のフロアの空室状況
| 階数 | 広さ | 賃料 | 敷/礼 | 詳細 | 間取り | クリップ |
|---|---|---|---|---|---|---|
| 4F401 | 114.07坪377.09㎡ | 131.18万坪単価 11,500円管理費込み |
敷: 10ヶ月
礼: 1ヶ月
|
詳細 |
|
|
| 7F706 | 45.88坪151.67㎡ | 52.76万坪単価 11,500円管理費込み |
敷: 10ヶ月
礼: 1ヶ月
|
詳細 |
|
|
| 5F502 | 23.05坪76.20㎡ | 募集終了 | 詳細 |
|
||
| 7F703 | 27.91坪92.26㎡ | 募集終了 | 詳細 |
|
||
地図で場所を確認する(地図をドラッグすると近隣の物件・相場を検索することが出来ます。)
宇徳ビル/宇徳ビルディングの関連リンク
近隣のオススメ物件
(仮称)野毛町131店舗B棟

横浜市中区野毛町1-31 桜木町駅 徒歩4分 7.26~8.26坪
SOLACUBE横浜関内/MID POINT横浜関内

横浜市中区常盤町3-30-1 関内駅 徒歩1分 1坪
キンガビル/THE HUB横浜関内

横浜市中区扇町1-1-25 関内駅 徒歩2分 3.5坪
若林ビル

横浜市中区伊勢佐木町2-8-1 関内駅 徒歩5分 4.31坪
本町中央ビル

横浜市中区本町3-24-1 馬車道駅 徒歩3分 9.45~11坪
ビクセル伊勢佐木町

横浜市中区若葉町3-51 関内駅 徒歩12分 9.12坪
友井ビル

横浜市中区弁天通2-34-2 関内駅 徒歩6分 1.97~2.83坪
亀楽ビル

横浜市中区伊勢佐木町1-6-5 関内駅 徒歩4分 6.11坪
大営長者町ビル

横浜市中区長者町5-75-3 伊勢佐木長者町駅 徒歩2分 10.66坪
住五ビル

横浜市中区住吉町5-61 馬車道駅 徒歩5分 9.29~10.35坪
パークサイド長者町

横浜市中区長者町5-56 伊勢佐木長者町駅 徒歩1分 7.62坪
RELUXIA伊勢佐木町

横浜市中区伊勢佐木町5-129-5 阪東橋駅 徒歩5分 1.82坪
南山ビル

横浜市中区南仲通4-40 馬車道駅 徒歩2分 8.58坪
シャトレーイン横浜

横浜市中区不老町1-2-7 関内駅 徒歩2分 4.29~6.42坪
旧第一銀行横浜支店/goodroom lounge 横浜馬車道

横浜市中区本町6-50-1 馬車道駅 徒歩1分 6.4~8.86坪
ストークタワー大通り公園Ⅰ/スペースラボ 横浜伊勢佐木町店

横浜市中区弥生町2-17 伊勢佐木長者町駅 徒歩3分 1.04~1.89坪
桜木町白鳥ビル

横浜市中区花咲町2-60 桜木町駅 徒歩4分 2.92坪
シリウスⅡ

横浜市中区長者町9-137 日ノ出町駅 徒歩4分 9.66坪
曙町3丁目店舗

横浜市中区曙町3-3-21 阪東橋駅 徒歩5分 8.47坪
ライオンズマンション横浜伊勢佐木町

横浜市中区長者町3-7-1 伊勢佐木長者町駅 徒歩2分 5.14坪




