※ 課税項目は、税抜き表示です
空室確認日
以前募集していた物件を表示する
営業時間:平日9:00~18:00
建物仕様
| 名称 | 水野ビル |
|---|---|
| 住所 | 港区新橋5-35-8 |
| 交通 |
利用可能駅
利用可能路線
|
| 規模・構造 | 鉄筋コンクリート造(RC) / 地上6階建 |
| 竣工 | 1970年6月 |
| 用途・仕様 | 賃貸オフィス、事務所仕様 |
| エレベーター | 1基 |
| 駐車場 | 有り |
| 入り口段差 | 有り |
設備・特徴
スタッフおすすめのポイント
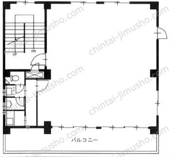
1970年築・地上6階建て、水廻りやエレベーターはリニューアルされており清潔感のある共用部になっています。基準となる貸室は1フロアー約30坪の整形空間。コンパクトながら室内外にトイレがあり男女別トイレとして利用ができます。通り沿いは1面が窓面で明るさもある室内です。場所は御成門駅から徒歩3分、日比谷通りの芝郵便局前交差点の1本裏通りに立地しています。赤レンガ通りと挟まれたエリアでそれぞれの通り沿いの店舗利用が便利な環境にあります。
地図でアクセスを確認する
近隣の同クラスのビル
水野ビルの関連リンク
近隣のオススメ物件
芝TKビルディング

港区芝1-8-25 浜松町駅 徒歩6分 33.83坪
笹井ビル

港区西新橋3-1-2 虎ノ門駅 徒歩8分 18.05坪
石井ビル

港区新橋3-1-10 新橋駅 徒歩5分 33.46坪
中島商事ビル

中央区銀座8-5-6 銀座駅 徒歩5分 21~30坪
明宏ビル別館

港区新橋1-18-2 新橋駅 徒歩3分 22坪
銀座小寺ビル

中央区銀座8-14-5 東銀座駅 徒歩4分 27坪
明宏ビル本館

港区新橋1-18-2 新橋駅 徒歩4分 26.7坪
銀座8丁目10番ビル

中央区銀座8-10-8 新橋駅 徒歩5分 31.24坪
ステュディオ虎ノ門

港区虎ノ門3-18-12 神谷町駅 徒歩1分 6.43~6.84坪
潁川ビル

港区新橋5-14-16 新橋駅 徒歩5分 19.02坪
小林ビル

港区芝1-9-9 浜松町駅 徒歩9分 7.91坪
川口ビル

港区新橋6-7-1 御成門駅 徒歩5分 33.63坪
浜松町オフィスデザインビル/THE HUB浜松町BASE

港区浜松町1-23-1 浜松町駅 徒歩3分 9.19坪
新橋プレイス/ビジネスエアポート新橋

港区新橋1-12-9 新橋駅 徒歩1分 5.11~13.78坪
第一白川ビル

港区西新橋3-23-6 御成門駅 徒歩2分 29坪
Daiwa麻布台ビル

港区麻布台2-3-3 神谷町駅 徒歩6分 36.05坪
デュープレックス銀座タワー8/14

中央区銀座8-14-9 新橋駅 徒歩6分 24.8坪
虎ノ門桜ビル

港区虎ノ門3-22-1 御成門駅 徒歩5分 41.06坪
ニュー新橋ビル/ハローオフィス新橋

港区新橋2-16-1 新橋駅 徒歩1分 9.53~20.79坪























