※ 課税項目は、税抜き表示です
空室確認日
以前募集していた物件を表示する
営業時間:平日9:00~18:00
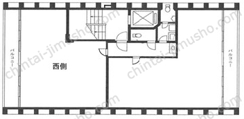
建物仕様
| 名称 | 明和ビル |
|---|---|
| 住所 | 港区新橋2-12-16 |
| 交通 |
利用可能駅
利用可能路線
|
| 規模・構造 | 鉄骨鉄筋コンクリート造(SRC) / 地上10階建 |
| 竣工 | 1970年1月 |
| 用途・仕様 | 賃貸オフィス、事務所仕様 |
| エレベーター | 8人乗 1基 |
| 入り口段差 | 有り |
設備・特徴
スタッフおすすめのポイント
内幸町駅のある西新橋交差点が至近。1970年築・地上10階建てで長年に渡り日比谷通り沿いで稼働し続ける賃貸事務所ビルです。周辺には大型ビルや大手銀行の支店なども多く、まさに新橋・虎ノ門エリアの中心に位置する物件です。基準階フロアー約40坪の貸室は男女別トイレ・個別空調・機械警備・光ケーブルを主な設備とし、フロアーによっては20坪前後の分割された区画もございます。
地図でアクセスを確認する
近隣の同クラスのビル
明和ビルの関連リンク
近隣のオススメ物件
虎ノ門40MTビル別館

港区虎ノ門5-13-1 神谷町駅 徒歩1分 10.18~22.48坪
S.A.グレイス

港区西新橋1-23-3 虎ノ門駅 徒歩3分 16.65坪
新橋ベスト

港区新橋5-4-1 新橋駅 徒歩6分 12.92~22.11坪
日比谷国際ビル

千代田区内幸町2-2-3 内幸町駅 徒歩2分 14.89坪
御成門コープ

港区西新橋3-24-1 新橋駅 徒歩13分 14.17~16.51坪
虎ノ門MTビル

港区虎ノ門3-10-3 神谷町駅 徒歩4分 27.5坪
江夏ビル

港区新橋3-19-7 新橋駅 徒歩3分 6.8坪
折田ビル

港区新橋6-2-9 御成門駅 徒歩3分 13.12坪
第一榎ビル

港区虎ノ門5-3-1 神谷町駅 徒歩1分 22.53坪
浅川ビル

港区新橋1-16-10 新橋駅 徒歩1分 17.75坪
森山ビル

港区西新橋2-4-1 新橋駅 徒歩6分 17.7坪
三沢ビル

港区新橋6-12-8 新橋駅 徒歩8分 12.5坪
アソルティ新橋四丁目

港区新橋4-24-10 新橋駅 徒歩5分 14.7坪
虎ノ門水野ビル

港区虎ノ門3-11-12 神谷町駅 徒歩3分 19.3坪
新橋柳屋ビル

港区新橋1-16-6 新橋駅 徒歩2分 15.61坪
汐留ファーストビル

港区東新橋2-9-6 新橋駅 徒歩8分 12.33坪
杉村ビル

港区新橋1-18-13 新橋駅 徒歩2分 4.4坪
ACN虎ノ門イースト

港区西新橋3-4-2 御成門駅 徒歩8分 11.81坪
虎ノ門法曹ビル

港区西新橋1-20-3 新橋駅 徒歩7分 14.55坪



























