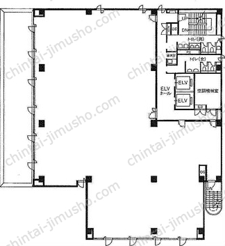
フロンティア御成門 2F 157.70坪
港区西新橋3-25-33
募集要項
2F
157.70坪521.32㎡
お問合せください -
入居可能日
即入居可
月額内訳 ・ その他
| 賃料 | -円 |
|---|---|
| 管理費 | |
| 敷金・保証金 | お問合せください |
| 礼金・償却 | なし |
| 更新料 | なし |
| 契約期間 | (定期借家契約) |
※ 課税項目は、税抜き表示です
お問合せ番号10067
お客様専用フリーダイヤル 0120-110-177
| 空室確認日 | 取扱会社 | タワーズプランニング株式会社 | |
|---|---|---|---|
| 取引態様 | 仲介 | 登録免許 | 宅地建物取引業登録 国土交通大臣(4) 7353号 |
特徴・設備
- エレベーターあり (15人乗り・2基)
- OAフロア
- 天高2.45m (OA 5cm)
- 24時間利用可能
- 駐車場あり
- 新耐震基準準拠
- 男女別トイレ
- 機械警備
- 光ファイバー対応
- エアコンあり (セントラル空調)
特徴・設備は調査時のものです。現状を優先致しますのでご了承下さい。
スタッフおすすめのポイント
都営三田線の御成門駅が徒歩2分、日比谷線の神谷町駅に向かう通り沿いにある賃貸オフィスビル。神谷町駅にも徒歩6分、増上寺・東京プリンスホテル・東京タワーなども近い緑豊かな芝公園エリアの中心地に立地しています。建物は鮮やかで明るさがある綺麗なベージュカラーが映える外観。地下1階地上8階建てで1985年築の新耐震基準です。基準階貸室は約160坪の大型フロアー。エレベーター2基・セントラル空調・機械警備・OA床・男女別トイレ・光ファイバー・駐車場完備と大型空間をサポートする設備が揃っています。室内動線も複数箇所にありレイアウト効率も高め、3面採光で明るさ・開放感も充分です。
他のフロアの空室状況
| 階数 | 広さ | 賃料 | 敷/礼 | 詳細 | 間取り | クリップ |
|---|---|---|---|---|---|---|
| 3F | 157.70坪521.32㎡ | 募集終了 | 詳細 |
|
||
| 4F | 157.70坪521.32㎡ | 募集終了 | 詳細 |
|
||
| B1F | 113.29坪374.51㎡ | 募集終了 | 詳細 |
|
||
| 6F | 157.70坪521.32㎡ | 募集終了 | 詳細 |
|
||
| 1F | 113.29坪374.51㎡ | 募集終了 | 詳細 |
|
||
地図で場所を確認する(地図をドラッグすると近隣の物件・相場を検索することが出来ます。)
フロンティア御成門の関連リンク
近隣のオススメ物件
六本木ファーストビル

港区六本木1-9-9 神谷町駅 徒歩5分 125.4坪
赤坂溜池タワー

港区赤坂2-17-7 溜池山王駅 徒歩4分 172.7坪
虎ノ門35森ビル

港区虎ノ門3-4-10 神谷町駅 徒歩3分 133.7坪
アーク森ビル

港区赤坂1-12-32 六本木一丁目駅 徒歩2分 164.1~200.4坪
愛宕グリーンヒルズMORIタワー

港区愛宕2-5-1 御成門駅 徒歩3分 136.3坪
DKビル

中央区銀座8-3-4 銀座駅 徒歩4分 99.75坪
神谷町MTビル

港区虎ノ門4-3-20 神谷町駅 徒歩1分 120.8~163.7坪
虎ノ門40MTビル

港区虎ノ門5-13-1 神谷町駅 徒歩1分 110.8坪
ルオーゴ汐留

港区東新橋2-3-3 新橋駅 徒歩5分 149.02坪
城山トラストタワー/Cozy Works KAMIYACHO

港区虎ノ門4-3-1 神谷町駅 徒歩3分 113.43~193.9坪
虎ノ門実業会館本館

港区虎ノ門1-1-20 虎ノ門駅 徒歩1分 100.69坪
パークコート浜離宮ザ・タワー

港区浜松町1-3-2 浜松町駅 徒歩12分 95.36坪
第1秋山ビルディング

港区虎ノ門2-3-22 虎ノ門駅 徒歩2分 107.58坪
第2秋山ビルディング

港区虎ノ門3-6-2 虎ノ門駅 徒歩7分 86.48~99.66坪
新虎ノ門実業会館

港区虎ノ門1-1-21 虎ノ門駅 徒歩1分 96.25坪
スハラ六本木ビル

港区六本木3-3-27 六本木一丁目駅 徒歩4分 102.45坪
TOWER FRONT 神谷町

港区東麻布1-3-8 赤羽橋駅 徒歩6分 108.62坪
SVAX西新橋ビルディング

港区西新橋2-39-3 新橋駅 徒歩8分 135.61坪
新橋パークプレイス

港区新橋5-27-1 新橋駅 徒歩6分 99.76坪
新橋東急ビル

港区新橋4-21-3 新橋駅 徒歩2分 210.37坪




