天翔オフィス御茶ノ水 8F 2.21坪
千代田区神田淡路町1-9-5
募集要項
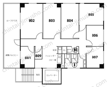
8F806
2.21坪7.31㎡
119,000円 坪単価 53,846円
入居可能日
即入居可
月額内訳 ・ その他
| 賃料 | 104,000円 |
|---|---|
| 管理費 | 15,000円 |
| 敷金・保証金 | お問合せください |
| 礼金・償却 | なし |
| 更新料 | なし |
| 契約期間 | 2年 |
※ 課税項目は、税抜き表示です
お問合せ番号362251
お客様専用フリーダイヤル 0120-110-177
| 空室確認日 | 取扱会社 | タワーズプランニング株式会社 | |
|---|---|---|---|
| 取引態様 | 仲介 | 登録免許 | 宅地建物取引業登録 国土交通大臣(4) 7353号 |
特徴・設備
- エレベーターあり (-)
- 24時間利用可能
- 新耐震基準準拠
- 機械警備
- オートロック
- エアコンあり (個別空調)
- レンタルオフィス・サービスオフィス
特徴・設備は調査時のものです。現状を優先致しますのでご了承下さい。
他のフロアの空室状況
| 階数 | 広さ | 賃料 | 敷/礼 | 詳細 | 間取り | クリップ |
|---|---|---|---|---|---|---|
| 3F305 | 4.85坪16.03㎡ | 22.00万坪単価 45,361円管理費込み |
敷: -
礼: なし
|
詳細 |
|
|
| 4F405 | 4.85坪16.03㎡ | 22.00万坪単価 45,361円管理費込み |
敷: -
礼: なし
|
詳細 |
|
|
| 5F509 | 3.74坪12.36㎡ | 18.00万坪単価 48,128円管理費込み |
敷: -
礼: なし
|
詳細 |
|
|
| 4F408 | 4.27坪14.12㎡ | 19.50万坪単価 45,667円管理費込み |
敷: -
礼: なし
|
詳細 |
|
|
| 8F805 | 3.16坪10.45㎡ | 16.00万坪単価 50,633円管理費込み |
敷: -
礼: なし
|
詳細 |
|
|
| 8F809 | 0.51坪1.69㎡ | 4.50万坪単価 88,235円管理費込み |
敷: -
礼: なし
|
詳細 |
|
|
| 1F102 | 7.99坪26.41㎡ | 募集終了 | 詳細 |
|
||
| 2F205 | 4.85坪16.03㎡ | 募集終了 | 詳細 |
|
||
| 2F208 | 4.27坪14.12㎡ | 募集終了 | 詳細 |
|
||
| 2F210 | 3.16坪10.45㎡ | 募集終了 | 詳細 |
|
||
| 2F212 | 2.24坪7.40㎡ | 募集終了 | 詳細 |
|
||
| 3F304 | 1.60坪5.29㎡ | 募集終了 | 詳細 |
|
||
| 3F306 | 6.26坪20.69㎡ | 募集終了 | 詳細 |
|
||
| 4F404 | 1.60坪5.29㎡ | 募集終了 | 詳細 |
|
||
| 5F504 | 1.60坪5.29㎡ | 募集終了 | 詳細 |
|
||
| 6F602 | 1.66坪5.49㎡ | 募集終了 | 詳細 |
|
||
| 6F603 | 1.66坪5.49㎡ | 募集終了 | 詳細 |
|
||
| 6F604 | 1.68坪5.55㎡ | 募集終了 | 詳細 |
|
||
| 6F607 | 4.27坪14.12㎡ | 募集終了 | 詳細 |
|
||
| 7F705 | 3.80坪12.56㎡ | 募集終了 | 詳細 |
|
||
地図で場所を確認する(地図をドラッグすると近隣の物件・相場を検索することが出来ます。)
天翔オフィス御茶ノ水の関連リンク
近隣のオススメ物件
神田美土代ビル

千代田区神田美土代町11-7 小川町駅 徒歩2分 4坪
神田第4アメレックスビル/ワイムビジネスプラザ神田

千代田区神田司町2-13 淡路町駅 徒歩1分 1.66~2.54坪
UPオフィス水道橋

千代田区神田駿河台2-11-7 水道橋駅 徒歩3分 1坪
坂下ビル

千代田区神田須田町2-6-1 岩本町駅 徒歩3分 1.21~1.82坪
藤井第一ビル

千代田区内神田1-11-11 神田駅 徒歩5分 1.82坪
WORK&NAP もとまち/元町ウェルネスパーク東館

文京区本郷1-1-19 水道橋駅 徒歩5分 1.85坪
天翔オフィス神田

千代田区神田鍛冶町3-7-21 神田駅 徒歩1分 2.67坪




