※ 課税項目は、税抜き表示です
空室確認日
営業時間:平日9:00~18:00
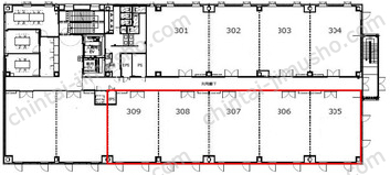
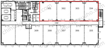
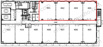
建物仕様
| 名称 | KOIL BASE |
|---|---|
| 住所 | 柏市若柴184 |
| 交通 |
利用可能駅
利用可能路線
|
| 規模・構造 | 鉄骨造(S) / 地上4階建 |
| 竣工 | 2026年1月(新耐震基準準拠) |
| 用途・仕様 | 賃貸オフィス、事務所仕様 |
| エレベーター | 有り |
設備・特徴
外観
地図でアクセスを確認する
MAP LOADING...











