第一フロンティアビル 2F 44.13坪
さいたま市中央区鈴谷2-744-1
募集要項
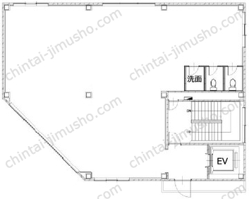
2F
44.13坪145.88㎡
募集終了につき
賃料情報は非公開です
入居可能日
募集終了
月額内訳 ・ その他
| 賃料 | 募集終了につき 非公開 |
|---|---|
| 管理費 | |
| 敷金・保証金 | |
| 礼金・償却 | |
| 更新料 | |
| 契約期間 |
※ 課税項目は、税抜き表示です
お問合せ番号361312
お客様専用フリーダイヤル 0120-110-177
| 空室確認日 | 取扱会社 | タワーズプランニング株式会社 | |
|---|---|---|---|
| 取引態様 | 仲介 | 登録免許 | 宅地建物取引業登録 国土交通大臣(4) 7353号 |
特徴・設備
- 天高3m
- 店舗相談
- 新耐震基準準拠
- 機械警備
- エアコンあり (個別空調)
特徴・設備は調査時のものです。現状を優先致しますのでご了承下さい。
他のフロアの空室状況
| 階数 | 広さ | 賃料 | 敷/礼 | 詳細 | 間取り | クリップ |
|---|---|---|---|---|---|---|
| 1F | 42.94坪141.95㎡ | -お問合せください |
敷: -
礼: -
|
詳細 |
|



