安和宝町ビル 3F 6.66坪
中央区八丁堀4-1-3
募集要項
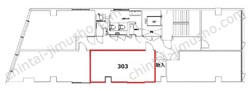
3F303
6.66坪22.02㎡
113,220円 坪単価 17,000円
入居可能日
2026年4月1日
月額内訳 ・ その他
| 賃料 | 113,220円 |
|---|---|
| 管理費 | 込み |
| 敷金・保証金 | 6ヶ月 |
| 礼金・償却 | 礼金:要確認償却:なし |
| 更新料 | 1ヶ月 |
| 契約期間 | 3年(定期借家契約) |
※ 課税項目は、税抜き表示です
お問合せ番号214880
お客様専用フリーダイヤル 0120-110-177
| 空室確認日 | 取扱会社 | タワーズプランニング株式会社 | |
|---|---|---|---|
| 取引態様 | 仲介 | 登録免許 | 宅地建物取引業登録 国土交通大臣(4) 7353号 |
特徴・設備
- エレベーターあり (9人乗り・1基)
- 24時間利用可能
- 男女別トイレ
- ウォシュレット設置
- 機械警備
- 光ファイバー対応
- エアコンあり (個別空調)
特徴・設備は調査時のものです。現状を優先致しますのでご了承下さい。
スタッフおすすめのポイント
1970年築と歴史のある物件ですが、2014年にリニューアルされており、白色系の爽やかな外観・シックな装いの石張りのエントランスホールになっています。貸室はバリエーション豊かな構成で、最大40坪クラスの1フロアー貸しや10坪以下・10坪台・20坪台と幅広い規模のお客様に御検討いただける物件です。場所は京橋ジャンクションが近い首都高速道路沿いにあり、宝町駅徒歩2〜3分・京橋駅と八丁堀駅が徒歩4〜5分という交通アクセス良好な立地です。
他のフロアの空室状況
| 階数 | 広さ | 賃料 | 敷/礼 | 詳細 | 間取り | クリップ |
|---|---|---|---|---|---|---|
| 6F601 | 3.93坪12.99㎡ | 9.20万坪単価 23,410円管理費込み |
敷: 2ヶ月
礼: 3ヶ月
|
詳細 |
|
|
| 6F602 | 4.23坪13.98㎡ | 9.30万坪単価 21,985円管理費込み |
敷: 2ヶ月
礼: 3ヶ月
|
詳細 |
|
|
| 6F603 | 2.72坪8.99㎡ | 9.00万坪単価 33,088円管理費込み |
敷: 2ヶ月
礼: 3ヶ月
|
詳細 |
|
|
| 6F604 | 3.93坪12.99㎡ | 9.20万坪単価 23,410円管理費込み |
敷: 2ヶ月
礼: 3ヶ月
|
詳細 |
|
|
| 6F605 | 3.63坪12.00㎡ | 9.10万坪単価 25,069円管理費込み |
敷: 2ヶ月
礼: 3ヶ月
|
詳細 |
|
|
| 3F | 48.40坪160.00㎡ | 募集終了 | 詳細 |
|
||
| 2F201 | 14.60坪48.26㎡ | 募集終了 | 詳細 |
|
||
| 2F203 | 22.07坪72.96㎡ | 募集終了 | 詳細 |
|
||
| 3F301 | 6.63坪21.92㎡ | 募集終了 | 詳細 |
|
||
| 3F302 | 8.11坪26.81㎡ | 募集終了 | 詳細 |
|
||
| 3F304 | 8.27坪27.34㎡ | 募集終了 | 詳細 |
|
||
| 3F305 | 8.86坪29.29㎡ | 募集終了 | 詳細 |
|
||
| 4F401 | 53.10坪175.54㎡ | 募集終了 | 詳細 |
|
||
| 5F501 | 9.20坪30.41㎡ | 募集終了 | 詳細 |
|
||
| 5F502 | 5.75坪19.01㎡ | 募集終了 | 詳細 |
|
||
| 5F503 | 12.64坪41.79㎡ | 募集終了 | 詳細 |
|
||
| 5F504 | 5.92坪19.57㎡ | 募集終了 | 詳細 |
|
||
地図で場所を確認する(地図をドラッグすると近隣の物件・相場を検索することが出来ます。)
安和宝町ビルの関連リンク
近隣のオススメ物件
VORT銀座residence

中央区銀座1-15-13 銀座一丁目駅 徒歩3分 8.7~9.12坪
第1SSビル

中央区八丁堀4-12-20 八丁堀駅 徒歩1分 9.1坪
日本工築1号館ビル

中央区京橋2-9-12 宝町駅 徒歩3分 9~11坪
新井ビル

中央区日本橋茅場町1-12-1 茅場町駅 徒歩1分 10.62坪
ドミシールカワイ

中央区入船3-8-9 新富町駅 徒歩2分 8.12坪
ウィンド新富ビル

中央区新富1-4-1 新富町駅 徒歩3分 6.8~6.83坪
高田ビル

中央区日本橋茅場町3-3-2 茅場町駅 徒歩2分 11坪
日本橋大江戸ビル

中央区日本橋茅場町2-5-6 茅場町駅 徒歩1分 6.18坪
ファイブビル八丁堀

中央区八丁堀4-14-7 八丁堀駅 徒歩4分 8.02坪
ピエノアーク入船

中央区入船1-9-8 八丁堀駅 徒歩5分 3.02坪
八木ビル

中央区入船3-3-3 新富町駅 徒歩1分 9.68坪
庄司ビル

中央区八丁堀2-19-7 八丁堀駅 徒歩3分 10.98坪
東熱新川ビル

中央区新川1-24-8 茅場町駅 徒歩8分 11.57坪
アネックス福神ビル

中央区銀座1-6-17 銀座一丁目駅 徒歩2分 10.17坪
明石町ツインクロス

中央区明石町1-3 新富町駅 徒歩1分 10.86坪
フジタ新富マンション

中央区新富1-6-5 新富町駅 徒歩3分 5.66坪
亀島ビル

中央区日本橋茅場町3-13-2 八丁堀駅 徒歩2分 10.29坪
大湯ビル

中央区日本橋茅場町2-6-8 茅場町駅 徒歩2分 10坪
ギンザ104ビル

中央区銀座1-4-4 有楽町駅 徒歩5分 7.85坪




