※ 課税項目は、税抜き表示です
空室確認日
以前募集していた物件を表示する
営業時間:平日9:00~18:00
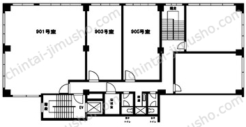
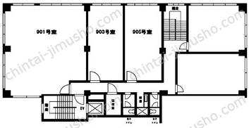
建物仕様
| 名称 | ハシモトビル |
|---|---|
| 住所 | 台東区浅草橋5-4-5 |
| 交通 |
利用可能駅
利用可能路線
|
| 規模・構造 | 鉄骨鉄筋コンクリート造(SRC) / 地上9階建 |
| 竣工 | 1974年9月 |
| 用途・仕様 | 賃貸オフィス、事務所仕様 |
| エレベーター | 9人乗 1基 |
| 入り口段差 | 有り |
設備・特徴
スタッフおすすめのポイント
三井記念病院があるブロックの向かい、清洲橋通り沿いに建つ賃貸事務所ビルです。秋葉原駅・浅草橋駅が徒歩7分ほどの中間地点に立地しています。1977年築・地上9階建て、築年数は経ていますが、ホワイトベージュの壁面に2面に窓面が目一杯広がる外観が清涼感を漂わせています。1フロアーは80坪近い規模ですが、共用部に男女別トイレと給湯室を配して10坪台からのコンパクトな分割区画が多数ある貸室構成になっています。個人事務所・新規開業・士業や小規模な営業所まで幅広い中小のお客様にも御検討いただける物件です。
地図でアクセスを確認する
近隣の同クラスのビル
ハシモトビルの関連リンク
近隣のオススメ物件
末広町ハイム

千代田区外神田3-5-5 末広町駅 徒歩3分 9.01~9.37坪
東日本橋Y’sビル

中央区東日本橋3-11-11 東日本橋駅 徒歩1分 13.27坪
KURAUCHI BUILDING

千代田区東神田1-15-2 馬喰横山駅 徒歩2分 13.54坪
フォロス岩本町ビル

千代田区岩本町3-9-15 秋葉原駅 徒歩8分 19.13坪
イワモトチョービル/ハローオフィス秋葉原(岩本町)

千代田区岩本町3-11-8 秋葉原駅 徒歩4分 2.25~2.28坪
秋葉原再開発ビル

千代田区神田佐久間町2-22 秋葉原駅 徒歩2分 14坪
大島屋浅草橋ビル

台東区柳橋1-13-5 浅草橋駅 徒歩1分 16坪
両国ダイカンプラザ

墨田区両国2-21-5 両国駅 徒歩1分 4.65坪
岩本町寿共同ビル

千代田区岩本町3-9-13 岩本町駅 徒歩1分 15.13~20.61坪
五十川ビル

台東区台東1-23-4 秋葉原駅 徒歩9分 8.25坪
第5東ビル

千代田区神田佐久間町3-38 秋葉原駅 徒歩2分 31坪
蔵前永谷ビル

台東区蔵前2-4-3 蔵前駅 徒歩1分 3.67~18坪
S-CUBEビル

中央区東日本橋2-25-4 東日本橋駅 徒歩5分 18.35坪
メビュウス髙島

千代田区東神田3-6-6 浅草橋駅 徒歩1分 12.43坪
NOVEL WORK AKIHABARA

千代田区神田佐久間町3-37-4 秋葉原駅 徒歩4分 28.45坪
合人社東京秋葉原ビル

千代田区岩本町3-5-2 岩本町駅 徒歩3分 19.46~25.45坪
岩本町ビル

千代田区神田岩本町1-1 秋葉原駅 徒歩2分 14.41坪
黒崎ビル

千代田区東神田1-5-2 馬喰町駅 徒歩3分 17.5坪
末広JFビル

千代田区外神田5-1-5 末広町駅 徒歩1分 14.54坪
































