※ 課税項目は、税抜き表示です
空室確認日
以前募集していた物件を表示する
営業時間:平日9:00~18:00
建物仕様
| 名称 | 7山京ビル/ハローオフィス水天宮前 |
|---|---|
| 住所 | 中央区日本橋箱崎町17-8 |
| 交通 |
利用可能駅
利用可能路線
|
| 規模・構造 | 鉄骨鉄筋コンクリート造(SRC) / 地上8階建 |
| 竣工 | 1988年1月(新耐震基準準拠) |
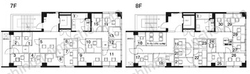
| 用途・仕様 | 賃貸オフィス、事務所仕様 |
| エレベーター | 9人乗 1基 |
設備・特徴
スタッフおすすめのポイント
半蔵門線の水天宮前駅から茅場町駅方面に徒歩3分、箱崎ジャンクション・東京エアシティターミナルが近い立地にある賃貸オフィスビルです。前面の通りを真っ直ぐ行けば永代通りに交わり茅場町駅にも徒歩6〜7分のアクセスです。1984年築(新耐震)・地上9階建て、鮮やかなホワイトカラーのスッキリしたパネル外装の建物です。基準階1フロアーは約37坪の整形な貸室、個別空調・男女別トイレ・機械警備・光ファイバーが主な設備です。地下鉄3路線の他、首都高速道路利用や空港へのアクセスも良好な多様な交通アクセスに囲まれた物件です。
地図でアクセスを確認する
近隣の同クラスのビル
7山京ビル/ハローオフィス水天宮前の関連リンク
近隣のオススメ物件
佑昌ビル

中央区日本橋茅場町2-7-2 茅場町駅 徒歩1分 15.02坪
ハイパーク日本橋

中央区日本橋浜町2-45-4 浜町駅 徒歩1分 21.53坪
ニューリバータワー

中央区新川1-6-11 八丁堀駅 徒歩5分 16.2坪
金盃第3ビル

中央区新川1-14-5 茅場町駅 徒歩6分 3.74~13.35坪
新井ビル

中央区日本橋茅場町1-12-1 茅場町駅 徒歩1分 10.62坪
高田ビル

中央区日本橋茅場町3-3-2 茅場町駅 徒歩2分 14坪
JL日本橋ビル

中央区日本橋堀留町1-10-15 人形町駅 徒歩4分 19.91坪
井門茅場町ビル

中央区日本橋茅場町2-4-8 茅場町駅 徒歩2分 20.9坪
茅場町サウスビルディング

中央区日本橋茅場町2-8-7 茅場町駅 徒歩1分 17.24坪
日本橋大江戸ビル

中央区日本橋茅場町2-5-6 茅場町駅 徒歩1分 6.18坪
新川一丁目ビル

中央区新川1-2-14 茅場町駅 徒歩3分 9.44~12.23坪
安井ビル

中央区日本橋人形町1-6-2 人形町駅 徒歩2分 12.21坪
シグマ茅場町ビル

中央区日本橋茅場町1-5-2 茅場町駅 徒歩2分 9.55坪
ファイブビル八丁堀

中央区八丁堀4-14-7 八丁堀駅 徒歩4分 8.02~13.2坪
1-8-15ビル

中央区日本橋堀留町1-8-15 人形町駅 徒歩2分 3~10.58坪
ひまわり日本橋人形町ビル

中央区日本橋人形町2-29-9 人形町駅 徒歩4分 23.42坪
日本橋イヅミビル/茅場町ビル

中央区日本橋茅場町2-17-9 茅場町駅 徒歩2分 1.82~4.54坪
JP浜町ビル

中央区日本橋浜町2-23-5 水天宮前駅 徒歩5分 19.1坪
深山ビル

中央区日本橋蛎殻町1-32-9 水天宮前駅 徒歩2分 7.55坪




























